Oelsnitz/Vogtland:
Geschäftshaus im Zentrum von Oelsnitz/V., ca. 3.800 m² Nutzfläche, san-bed. TG, 77 Stpl., Aufzug
Objekt-Nr.: OelGr26

Außenansicht

Außenansicht

Außenansicht

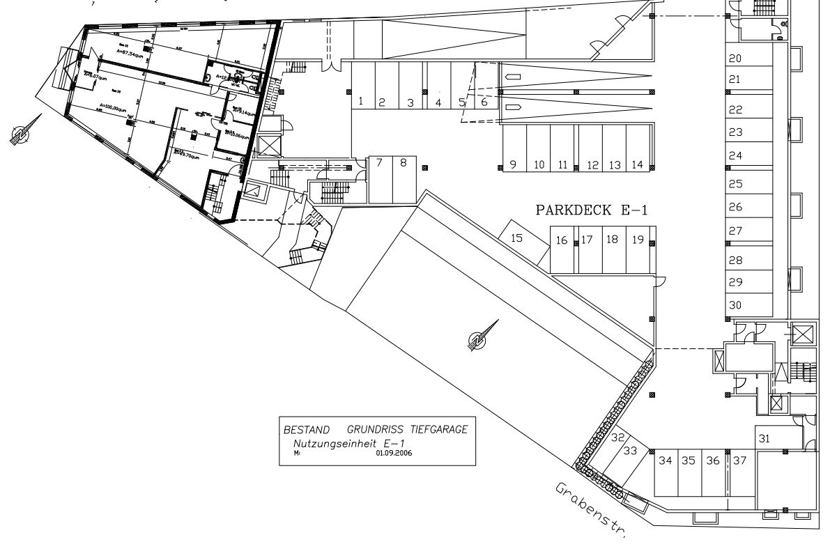
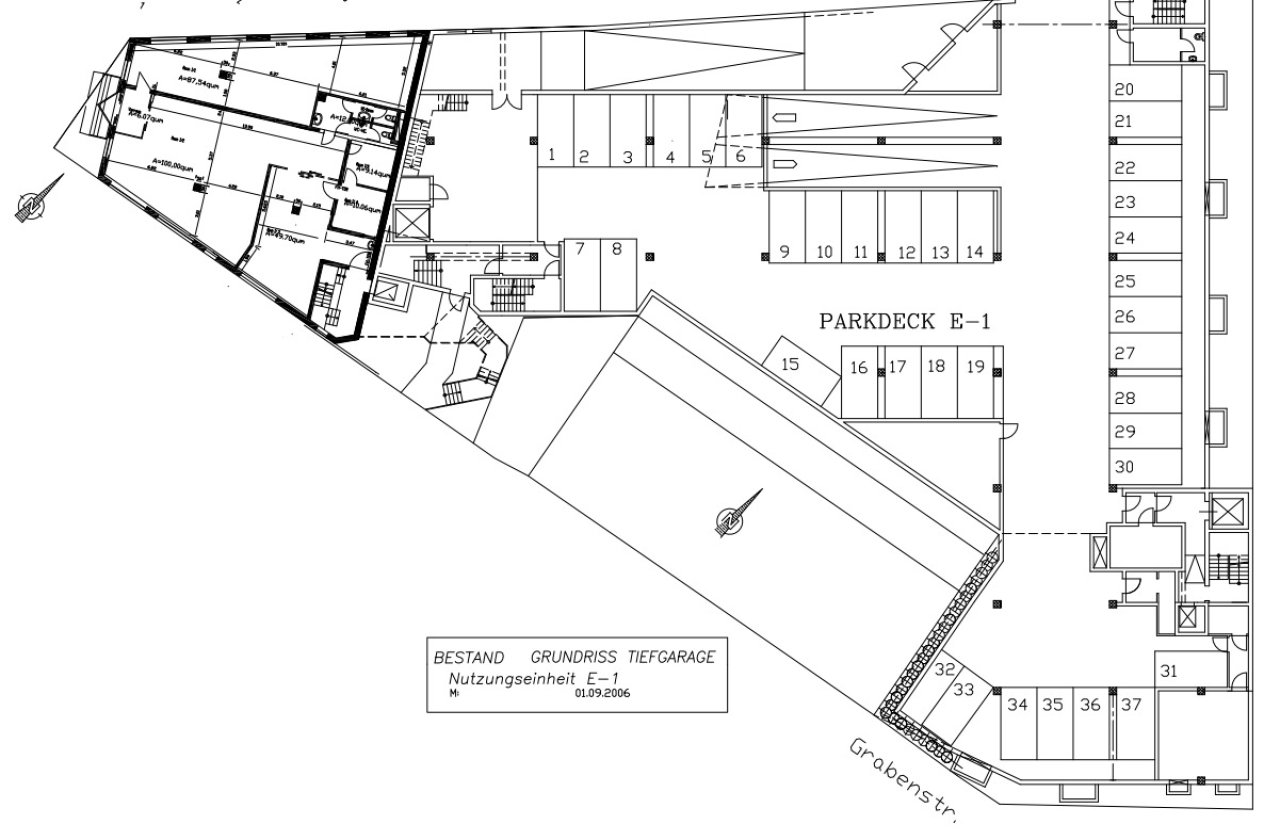
Ebene -1

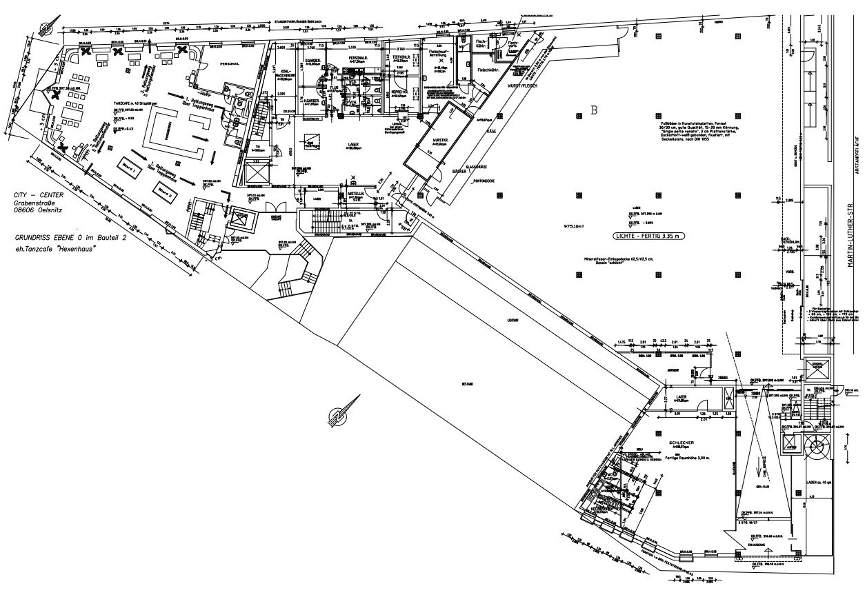
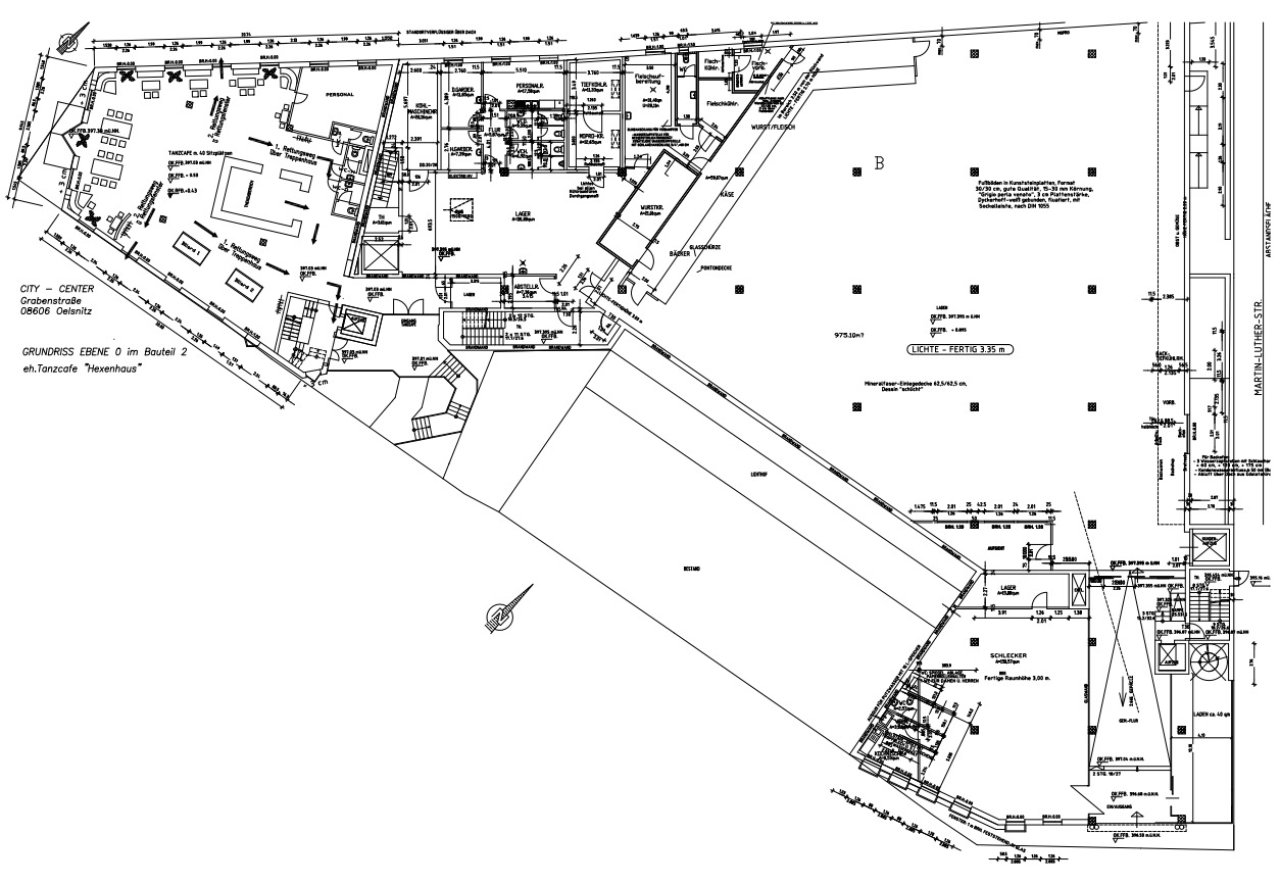
Ebene 0

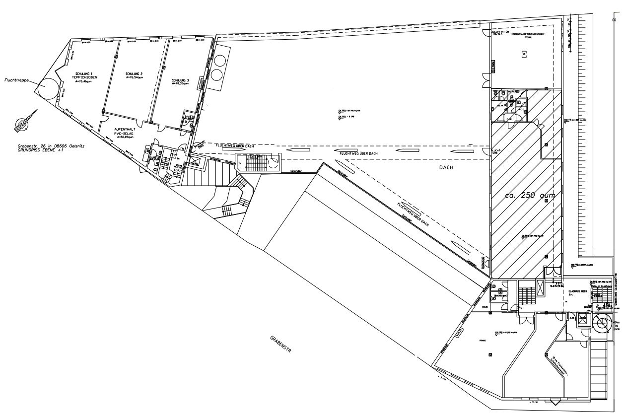
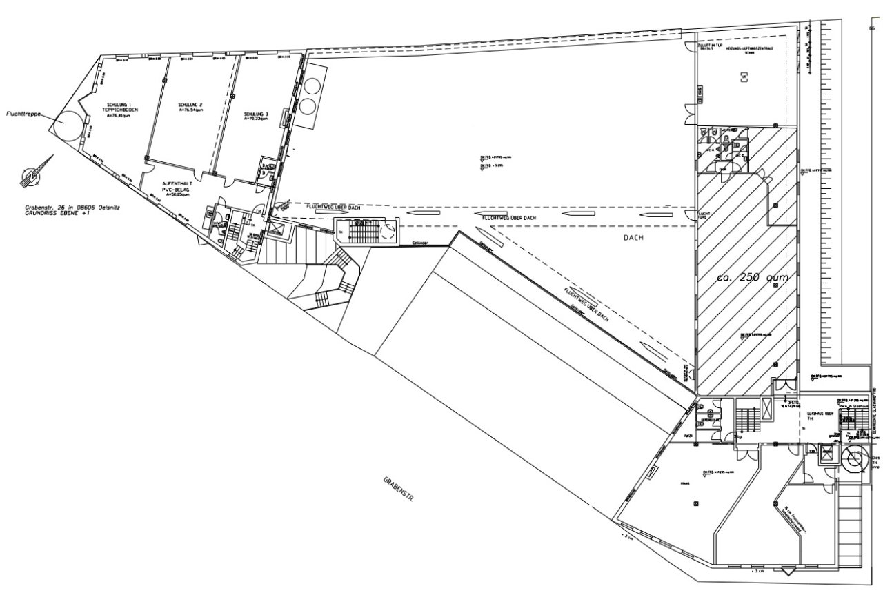
Ebene +1

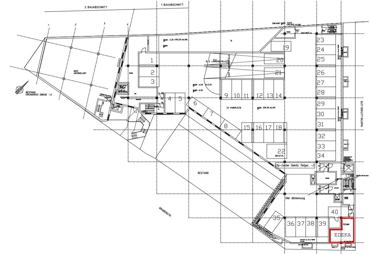
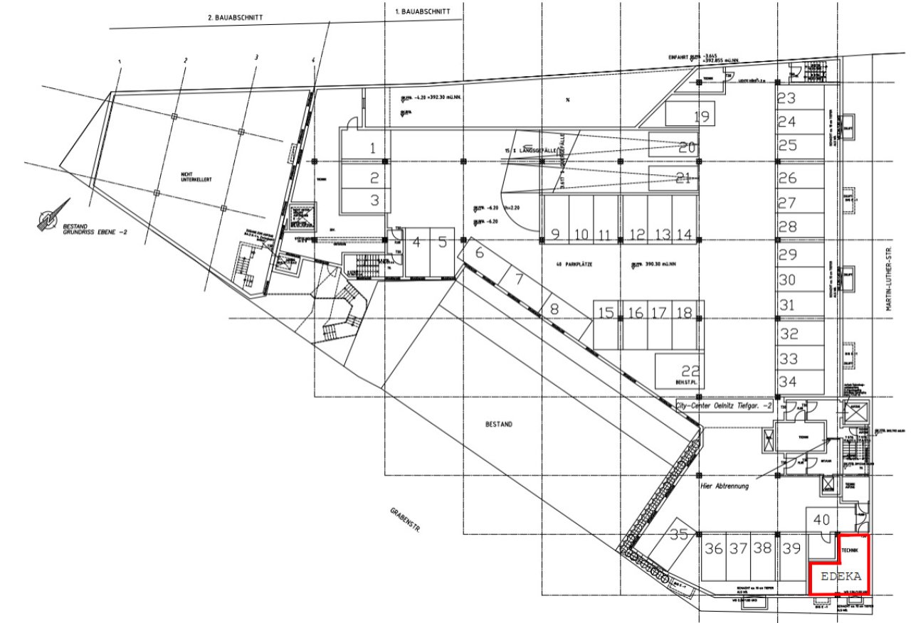
Ebene 2 mit EDEKA

Ebene +2

Ebene +3

Straßenansicht

Straßenansicht

Zugang zum EDEKA-Markt

Rückansicht

Blick aus Richtung Innenstadt

Brunnen am Markt

Innenstadt - Markt

Tiefgarage

Tiefgarage

Haustechnik

Haustechnik

Haustechnik

Erdgeschoss - öffentlicher Bereich

Erdgeschoss - leerstehende Gewerbeeinheit

Eingangsbereich EDEKA

EDEKA

Erdgeschoss - öffentlicher Bereich

Erdgeschoss - öfffentlicher Bereich

Obergeschoss - Aufzug

Treppenhaus

leerstehende Gewerbeeinheit im Rohbau

leerstehende Gewerbeeinheit im Rohbau

leerstehende Gewerbeeinheit im Rohbau

leerstehende Gewerbeeinheit

leerstehende Gewerbeeinheit

leerstehende Gewerbeeinheit im Rohbau

Obergeschoss - öffentlicher Bereich

leerstehende Gewerbeeinheit

leerstehende Gewerbeeinheit im Rohbau

leerstehende Gewerbeeinheit im Rohbau

leerstehende Gewerbeeinheit im Rohbau

großzügiges Flachdach

großzügiges Flachdach

Flurstück











































Preis:
750.000 €
Baujahr:
1994
Das Geschäftshaus wurde 1994 in 2 Bauabschnitten errichtet. Das Bauteil I ist unterkellert. Dort befindet sich auf 2 Ebenen verteilt eine Tiefgarage mit insgesamt 77 Stellplätzen. Es gibt 7 Gewerbeeinheiten mit einer Nutzfläche von ca. 2.759 m². Eine Einheit im Erdgeschoss (ca. 1.557 m²) ist an einen EDEKA-Markt vermietet. Die restlichen Flächen sind leerstehend und befinden sich teilweise im Rohbauzustand. In den Technikräumen im Kellerbereich gab es Feuchtigkeitsschäden, die jedoch mittels Trocknungsgeräten behoben wurden.
Das Bauteil II ist nicht unterkellert. Insgesamt befinden sich dort 6 Gewerbeeinheiten, die leer stehen, jedoch im Gegensatz zum Bauteil I ausgebaut sind. Die Nutzfläche beträgt ca. 1.100 m². Im Obergeschoss befand sich auf einer Fläche von ca. 280 m² ein Tanzcafé. Auf dem Bauteil I befindet sich ein großflächiges Flachdach, welches teilweise zur Dachterrasse umfunktioniert werden könnte.…
Die Immobilie ist an die öffentliche Kanalisation angeschlossen und wird mit einer zentralen Gasheizung betrieben. 2021 wurde ein Glasfaserkabelanschluss ins Haus verlegt.
Die noch auszubauenden Leerflächen eröffnen eine Vielzahl an Nutzungsmöglichkeiten für die Immobilie, wie beispielsweise als Betreutes Wohnen, Tagespflege oder als Schulungsräume.
Ursprünglich beabsichtigte der Verkäufer einen Verkauf der Immobilie für 1.150.000 EUR.
An der Immobilie sind nach Angaben des Verkäufers folgende Mängel bekannt geworden:
- Die Tiefgarage ist sanierungsbedürftig wegen Salzeintrages. Eine Korrosion an der Stahlbewehrung der Ebenen und Stützen wird nicht ausgeschlossen.
In den Jahren 1919 und 1920 erfolgte auf der Basis eines Gutachtens eine sondierende Sanierung eines 6 m langen Tiefgaragenabschnittes inkl. eines Stützenfußes einer Betonstütze.
Eine weitere Sanierung der gesamten Tiefgarage wurde von den Eigentümern bisher nicht in Angriff genommen.
- Für die Tiefgarage gibt es ein System mit Wandhydranten. Dieses genügt neueren brandschutztechnischer Vorgaben nicht mehr. Auch wegen des technischen Zustandes muss das System außer Dienst gestellt werden. Alternativ ist die Installation einer äquivalenten Anzahl von Handfeuerlöschern geplant. Diese Veränderung wurde von den zuständigen Behörden der Stadt Oelsnitz und des Vogtlandkreises geprüft und genehmigt. Über eine Realisierung des Vorhabens ist uns nichts bekannt.
- Zur turnusmäßigen Prüfung der elektrischen Kraft- und Lichtanlagen ist uns bekannt, das eine erneute Prüfung nach Auskunft der zuständigen Versicherung in 07/2025 erfolgen soll.
Protokolle der bisherigen Prüfungen liegen uns nicht vor.
Grundstück ca.: 2.571 m²
Anzahl der Parkflächen: 77 x Tiefgarage
Fahrstuhl: ja
vermietet: ja
Endenergieverbrauch Wärme: 100 kWh/(m²*a)
Endenergieverbrauch Strom: 123 kWh/(m²*a)
Energieverb. Warmwasser enthalten: ja
Heizung: Zentralheizung
Befeuerungsart: Gas
Energieausweistyp: Verbrauchsausweis
Baujahr laut Energieausweis: 1994
Die Provision beträgt 3,57 % des Kaufpreises inkl. 19 % MwSt.
Sie ist verdient mit Abschluss des notariellen Kaufvertrages und spätestens mit dem Kaufpreis zur Zahlung fällig. Der Makler hat mit dem Verkäufer einen provisionspflichtigen Vertrag in gleicher Höhe geschlossen.
Das könnte Ihnen auch gefallen
















































