Heinsdorfergrund:
Sanierungsbedürftiges, kleines MFH, Ausbaupotenzial im DG, schönes Grundstück!
Objekt-Nr.: HeiRei40


Garten

Rückansicht

Zufahrt aufs Grundstück

Blick auf das Grundstück

überdachte Sitzecke im Garten

Garten

Garten

Garten

Außenansicht

Keller mit Heizungsanlage

Keller mit Heizungsanlage

Zugang zur Wohnung im EG

Bad im EG

Wohnbereich im EG

Wohnbereich im EG

Küche EG (hier war Wasserschaden)

EG Einzelzimmer

Kaminofen im Wohnzimmer

Wohnzimmer im OG

Wohnzimmer im OG

Küche im OG

Küche im OG

Badezimmer OG

Wohnzimmer OG linke WE

Schlafzimmer OG linke WE

Blick vom Dachgeschoss

Zimmer im DG

Zimmer im DG

Badezimmer DG

DG Bodenkammer

Dachboden

Kellergeschoss

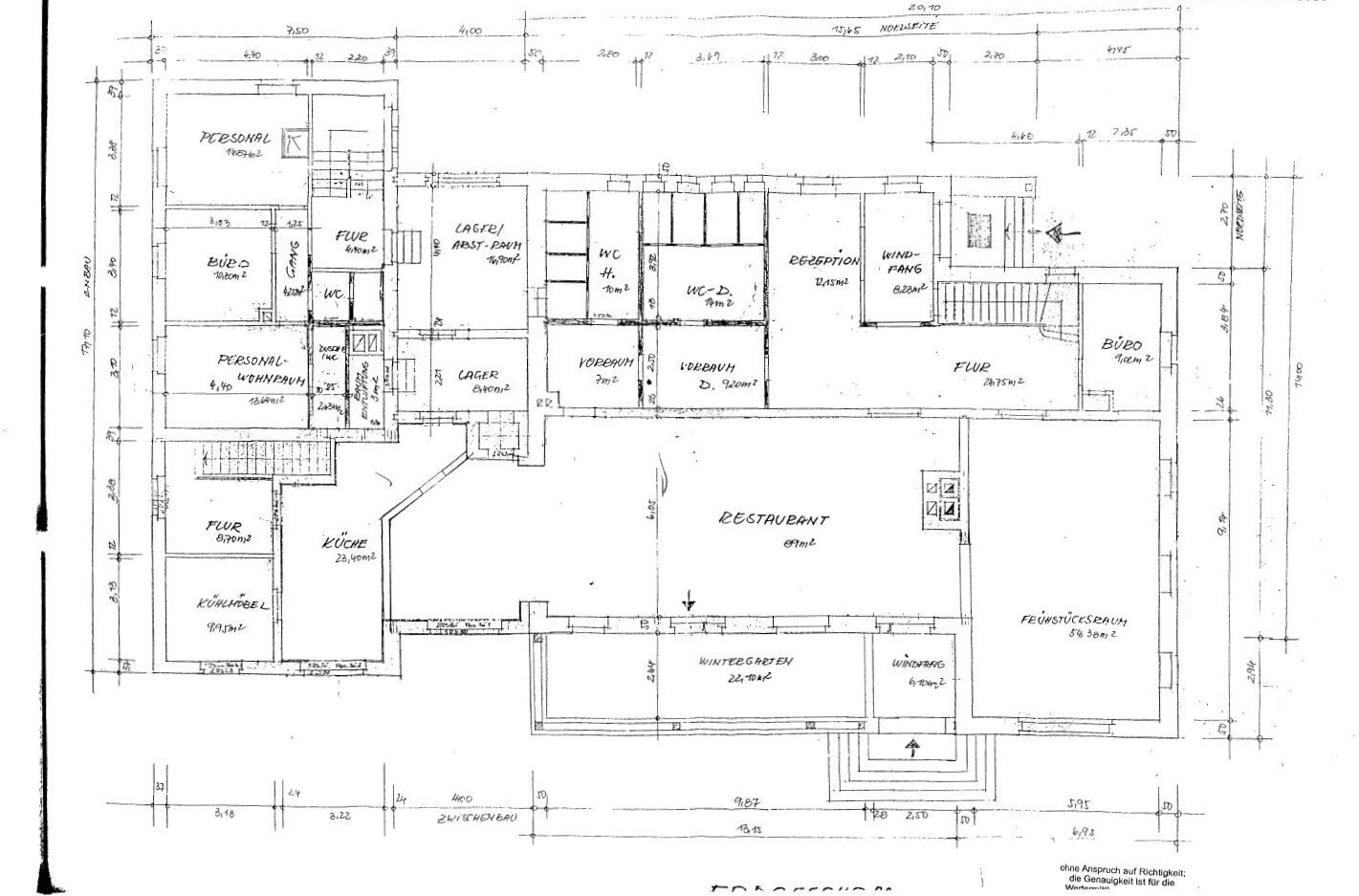
Erdgeschoss

1. Obergeschoss

Dachgeschoss

Dachboden





































Preis:
60.000 €
Wohnfläche ca.:
180 m²
Grundstück ca.:
410 m²
Zimmeranzahl:
9
Das Mehrfamilienhaus wurde ca. um 1903 in massiver Klinkerbauweise errichtet. Es handelt sich um ein Mehrfamilienhaus als Doppelhaushälfte, dass an ein gleich gestaltetes Haus angebaut ist. Zum Haus gehört ein sehr gepflegtes Gartengrundstück. Im Laufe der Zeit erfolgten hofseitig einige Anbauten. So ein Garagenanbau mit Erweiterung des Zugangsbereiches und 2 weitere Schuppen, einer davon zweigeschossig.
Darüber hinaus gab es im Inneren des Wohngebäudes im Laufe der Jahre einige bauliche Veränderungen und Modernisierungen. Derzeit befinden sich im Haus 2 Wohnungen, die Wohnung 1 im Erdgeschoss und die Wohnung 2 im 1. Obergeschoss.…
Jedoch sind beide Wohnungen nicht vollständig abgeschlossen, da beide zugehörige Räume besitzen, die nur über das Treppenhaus erreichbar sind. Durch einfache bauliche Eingriffe (Wanddurchbruch) wäre es möglich die Grundrisse so zu gestalten, dass jeweils eine abgeschlossene Wohnung entsteht.
Die Räume im Dachgeschoss wurden in Teilen und dem Ausbaugrad nach ebenfalls für Wohnzwecke genutzt. Ein Teil des Bodens ist jedoch nur mit einfachen Bodenkammern belegt und beinhaltet auch den Aufgang zum Spitzboden. Bei den Räumen im Dachgeschoss handelt es sich nicht um eine abgeschlossene Wohnung. Um dies zu erreichen wäre ein wesentlich höherer Umbauaufwand als im Erdgeschoss und Obergeschoss erforderlich.
Das Gebäude ist an die öffentliche Kanalisation angeschlossen und voll unterkellert. Im Keller befinden sich einige Abstellräume sowie die Heizungsanlage.
Auf dem Grundstück wurde ein liebevoll gestalteter Garten mit überdachter Sitzecke angelegt, die an heißen Tagen zum Verweilen einlädt.
Haustyp: Mehrfamilienhaus
Etagenanzahl: 3
Provisionspflichtig: ja
Provision: 2.975,- € inkl. 19 % MwSt.
Nutzfläche ca.: 187 m²
Dachboden: ja
Keller: voll unterkellert
Baujahr: 1903
Zustand: sanierungsbedürftig
Heizung: Zentralheizung
Befeuerungsart: Gas
Energieausweistyp: Bedarfsausweis - gültig vom 08.07.2022 bis 08.07.2032
Energieeffizienz-Klasse: H
Baujahr laut Energieausweis: 1996
Die Provision beträgt pauschal 2.975,- € inkl. 19 % MwSt. Sie ist verdient mit Abschluss des notariellen Kaufvertrages und spätestens mit dem Kaufpreis zur Zahlung fällig. Der Makler hat mit dem Verkäufer einen provisionspflichtigen Vertrag in gleicher Höhe geschlossen.
Bei vorliegender Immobilie handelt es sich um eine sogenannte Gebrauchtimmobilie. Eine bestimmte Beschaffenheit, insbesondere Wohnfläche oder Renovierungszustand werden üblicherweise nicht vereinbart. Die Angaben im Exposé dienen nur zu Informationszwecken. Sofern die Richtigkeit bestimmter Angaben besonders wichtig ist, so sind diese Angaben im Zweifel selbst zu überprüfen oder überprüfen zu lassen.
Das könnte Ihnen auch gefallen
08468 Heinsdorfergrund







































































