Zwickau:
Zentrumsnahe 2-Raum-Wohnung mit Balkon! Vermietet!
Objekt-Nr.: ÄS33-04

Hausansicht

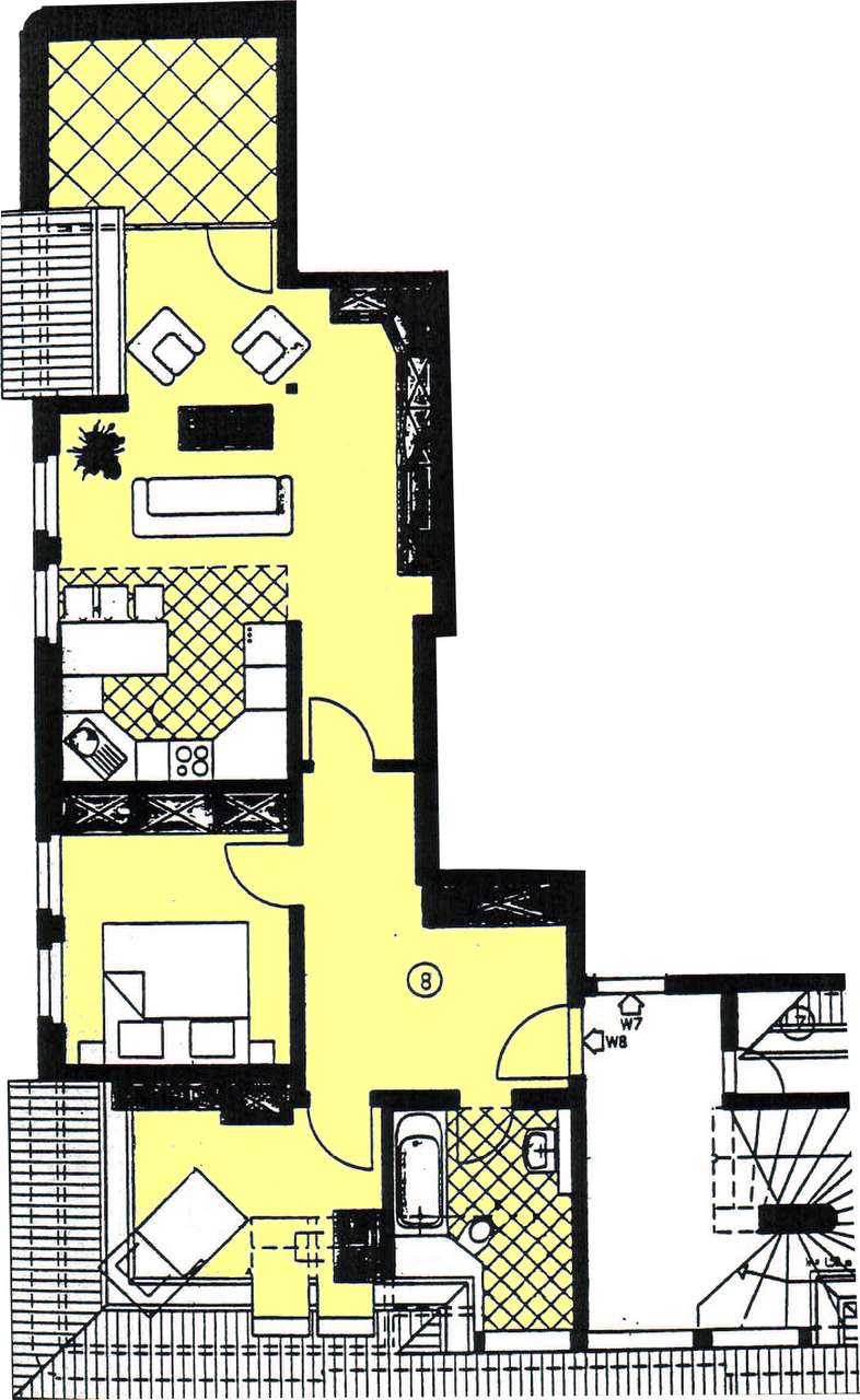
Grundriss W4

Hausansicht

Treppenhaus

Rückansicht

Umgebung

Zwickauer Hauptmarkt

Schwanenteich

Schwanenteich









Preis:
46.000 €
Wohnfläche ca.:
66,75 m²
Zimmeranzahl:
2
Die Stadtvilla wurde um 1852 als vollunterkellerter Massivbau errichtet und steht unter Denkmalschutz. 1876 erhielt die Villa einen Anbau. Die Fassade ist reich verziert.
Um die Jahrtausendwende erfolgte eine umfassende Sanierung des Gebäudes. Dabei wurde viel Wert auf die Verwendung hochwertiger Materialien und eine gehobene Ausstattung gelegt.
Das Grundstück ist 601 m² groß und gepflegt. Ein Großteil der Fläche ist asphaltiert bzw. mit Rasengittersteinen ausgelegt.
Die Wohnung ist vermietet. Der aktuelle Mietvertrag läuft seit 11/2016. Die Kaltmiete beträgt 285,00 EUR, die Nebenkostenvorauszahlung 188,00 EUR und die Gesamtmiete 473,00 EUR.
Der Erwerber wird Mitglied einer Wohneigentümergemeinschaft WEG mit einem Miteigentumsanteil von 814,10/10.000. Es ist lt. Wirtschaftsplan 2025 durch den Erwerber ein monatliches Hausgeld in Höhe von 222 EUR zu zahlen. Davon sind bei Vermietung ca. 2/3 als Betriebskosten umlegbar.
Wohnungstyp: Hochparterre
Etagenanzahl: 3
Provisionspflichtig: ja
Provision: 2.975 EUR inkl. MwSt.
Bad: Wanne
Anzahl Schlafzimmer: 1
Anzahl Badezimmer: 1
Balkon: 1
Keller: ja
vermietet: ja
Letzte Modernisierung/ Sanierung: 2002
Baujahr: 1876
Hausgeld: 222 €
Mieteinnahmen p.a.: 3.420 €
Bodenbelag: Fliesen, Laminat
Energieverb. Warmwasser enthalten: ja
Heizung: Zentralheizung
Befeuerungsart: Gas
Energieausweistyp: Verbrauchsausweis - gültig vom 15.11.2023 bis 14.11.2033
Energieeffizienz-Klasse: D
Baujahr laut Energieausweis: 2002
Die Provision beträgt pauschal 2.975,- € inkl. 19 % MwSt. Sie ist verdient mit Abschluss des notariellen Kaufvertrages und spätestens mit dem Kaufpreis zur Zahlung fällig. Der Makler hat mit dem Verkäufer einen provisionspflichtigen Vertrag in gleicher Höhe geschlossen.
Das könnte Ihnen auch gefallen
























































































