Zwickau:
Attraktive 4-Raum-Wohnung mit Balkon, zentrumsnah gelegen und vermietet
Objekt-Nr.: LPZ37-10

Außenansicht

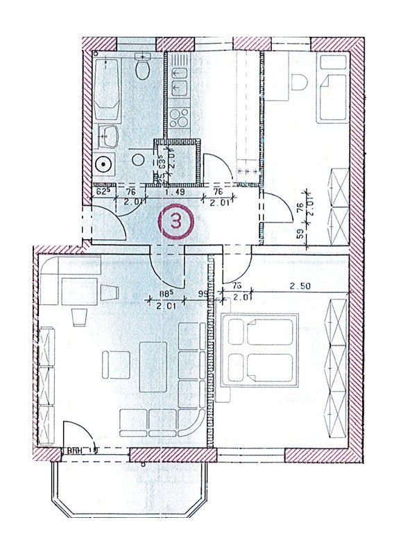
Grundriss W10

Balkonanlage

Außenansicht

Details am Haus

Straße

Penny (90 m)

Schlobigpark mit Johannisbad (350 m)

Zwickauer Arcaden (900 m)

Innenstadt

Schloss Osterstein (800 m)

Theater (900 m)

Kornmarkt (1 km)

Priesterhäuser

Schwanenteich (1,3 km)















Preis:
80.000 €
Wohnfläche ca.:
91,15 m²
Zimmeranzahl:
4
Das voll-unterkellerte und denkmalgeschützte Mehrfamilienhaus wurde lt. Energieausweis 1887 massiv erbaut und 2000 umfangreich saniert.
Das sächsische Landesamt für Denkmalpflege würdigt das Bauwerk als "Mietshaus in Ecklage in geschlossener Bebauung; mit Laden, gut erhaltener, zeittypischer Klinkerbau von städtebaulichem und baugeschichtlichem Wert".
In den umliegenden Straßen stehen mehrere Parkmöglichkeiten zur Verfügung.
Wohnungstyp: Dachgeschoss
Etage: 3
Etagenanzahl: 3
Provisionspflichtig: ja
Provision: 3,57 % des VKP, mind. 2.975 EUR, inkl. 19 % MwSt.
Bad: Dusche, Wanne, Fenster
Anzahl Schlafzimmer: 3
Anzahl Badezimmer: 1
Balkon: 1
Denkmalschutzobjekt: ja
Keller: ja
vermietet: ja
Letzte Modernisierung/ Sanierung: 2000
Baujahr: 1887
Hausgeld: 352 €
Mieteinnahmen p.a.: 7.320 €
Bodenbelag: Fliesen, Laminat
Energieverb. Warmwasser enthalten: ja
Energieklasse: D
Heizung: Zentralheizung
Befeuerungsart: Gas
Energieausweistyp: Verbrauchsausweis - gültig vom 23.07.2019 bis 22.07.2029
Energieeffizienz-Klasse: D
Baujahr laut Energieausweis: 2000
Die Provision beträgt 3,57 % des Kaufpreises, mindestens jedoch 2.975 EUR, jeweils inkl. 19 % MwSt.
Sie ist verdient mit Abschluss des notariellen Kaufvertrages und spätestens mit dem Kaufpreis zur Zahlung fällig. Der Makler hat mit dem Verkäufer einen provisionspflichtigen Vertrag in gleicher Höhe geschlossen.
Das könnte Ihnen auch gefallen












































