Zwickau:
Zentrumsnah! 1,5-Raum-Whg. mit Balkon + Fahrstuhl / rollstuhlgerecht; vermietet!
Objekt-Nr.: RM2W14

Außenansicht

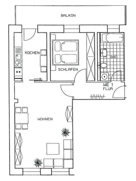
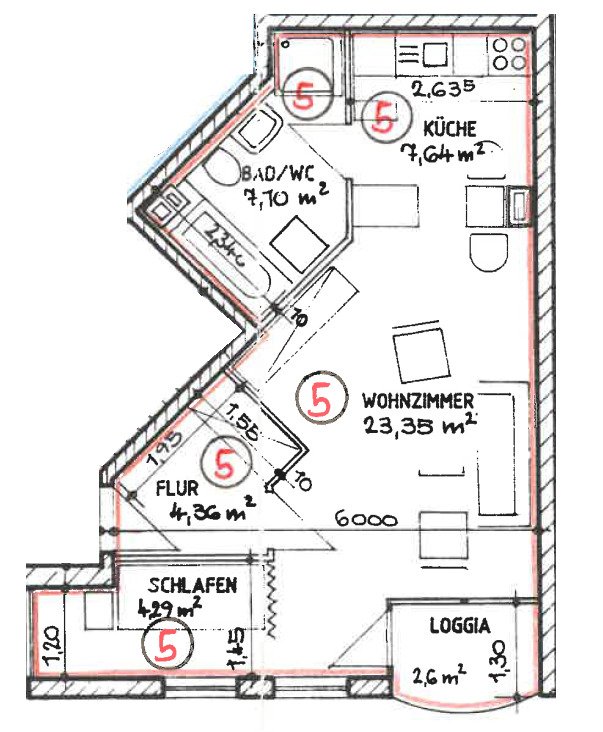
Grundriss

Rückansicht

Aufzug von außen

Treppenhaus

Hausflur EG

EG Aufzug

Flur

Wohnzimmer mit Zugang Balkon

Wohnzimmer mit Zugang Balkon

Schlafzimmer

Küche mit Zugang Balkon

Küche mit Zugang Balkon

Bad mit ebenerdiger Dusche

Bad mit Handtuchtrockner

Blick vom Balkon

Blick auf Dom St. Marien

Aufzug Keller

Keller

Schwanenteich Zwickau

Schwanenbrunnen

Hauptmarkt

Zwickauer Theater

Kornmarkt Zwickau

Priesterhäuser Zwickau

Zwickauer Arcaden

Schloss Osterstein



























Preis:
51.000 €
Wohnfläche ca.:
52,04 m²
Zimmeranzahl:
1,5
Das Mehrfamilienhaus wurde lt. Energieausweis um 1879 massiv erbaut und 2000 umfangreich saniert.
Bereits bei der Sanierung wurde Augenmerk auf ein senioren- bzw. behindertengerechtes Wohnen gelegt.
So befinden sich im Haus z.B. ein Fahrstuhl sowie barrierefreie Flure und Wohnungseingangstüren, die auch mit einem Rollstuhl passiert werden können. Auch der Keller ist mit dem Fahrstuhl erreichbar.
Die Wohnungen sind nach modernen Wohnbedürfnissen ausgestattet.
Etage: 2
Etagenanzahl: 3
Provisionspflichtig: ja
Provision: 2.975,- € inkl. 19 % MwSt.
Bad: Dusche
Anzahl Schlafzimmer: 1
Anzahl Badezimmer: 1
Balkon: 1
Keller: ja
Fahrstuhl: ja
Barrierefrei: ja
vermietet: ja
Letzte Modernisierung/ Sanierung: 2000
Baujahr: 1879
Hausgeld: 286 €
Mieteinnahmen p.a.: 3.600 €
Bodenbelag: Fliesen, Laminat
Zustand: gepflegt
Energieverb. Warmwasser enthalten: ja
Energieklasse: E
Heizung: Zentralheizung
Befeuerungsart: Fernwärme
Energieausweistyp: Verbrauchsausweis - gültig vom 07.05.2018 bis 06.05.2028
Energieeffizienz-Klasse: E
Baujahr laut Energieausweis: 2000
Die Provision beträgt pauschal 2.975,- € inkl. 19 % MwSt. Sie ist verdient mit Abschluss des notariellen Kaufvertrages und spätestens mit dem Kaufpreis zur Zahlung fällig. Der Makler hat mit dem Verkäufer einen provisionspflichtigen Vertrag in gleicher Höhe geschlossen.
Das könnte Ihnen auch gefallen
















































