Zwickau:
Barrierefrei Wohnen im Zentrum mit Fahrstuhl und großem Balkon - ideale Lage - gegenüber Schwanenteich!
Objekt-Nr.: RM2-01

Außenansicht

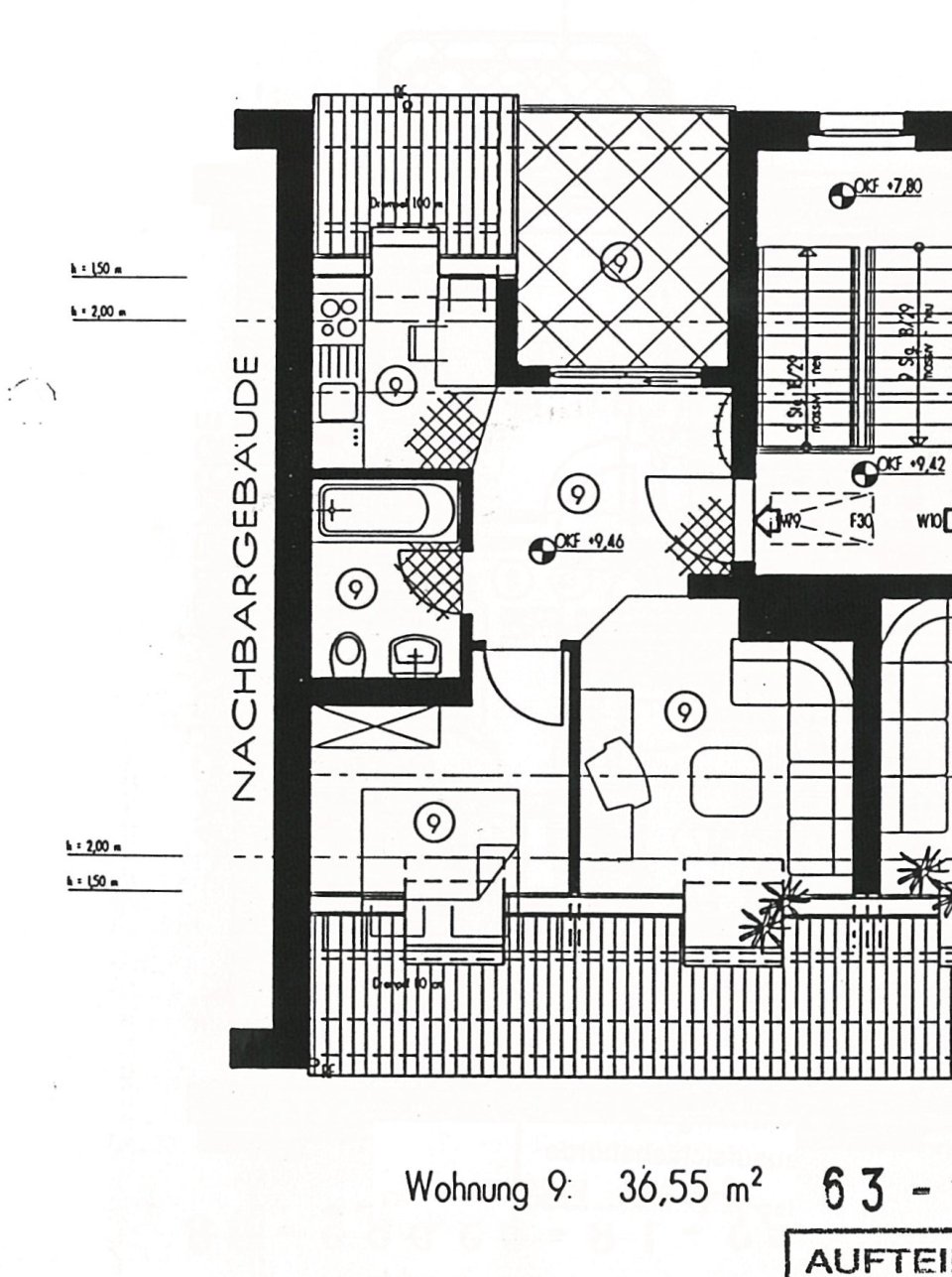
Grundriss

Balkonanlage


Aufzug außen

Treppenhaus

Hauseingangsbereich

Hauseingangsbereich

Aufzug EG

Flur

Wohnzimmer mit Zugang Balkon

Wohnzimmer mit Zugang Balkon

großer Balkon

großer Balkon

großer Balkon

kleiner Schlafraum

Tageslichtbad mit ebenerdiger Dusche

Küche mit Fenster

Aufzug Kellergeschoss

Kellerräume




















mtl. Kaltmiete:
252 €
Wohnfläche ca.:
45,80 m²
Zimmeranzahl:
1,5
Die Wohnung befindet sich in einem Ende der 90er Jahre sanierten Objekt.
Bereits bei der Sanierung wurde Augenmerk auf ein senioren- bzw. behindertengerechtes Wohnen gelegt.
So befinden sich im Haus z.B. ein Fahrstuhl sowie barrierefreie Flure und Wohnungseingangstüren, die auch mit einem Rollstuhl passiert werden können.
Wohnungstyp: Hochparterre
Etagenanzahl: 3
Warmmiete inkl. NK: 417 €
Nebenkosten: 165 €
Kaution / Genossenschaftsanteile: 504 €
Heizkosten: sind in den Nebenkosten enthalten
Provisionspflichtig: nein
Bad: Dusche, Fenster
Anzahl Schlafzimmer: 1
Anzahl Badezimmer: 1
Balkon: 1
Keller: ja
Fahrstuhl: ja
Barrierefrei: ja
Haustiere: nach Vereinbarung
Letzte Modernisierung/ Sanierung: 2000
Baujahr: 1879
Bezugsfrei ab: sofort
Bodenbelag: Fliesen, Laminat
Zustand: gepflegt
Energieverb. Warmwasser enthalten: ja
Energieklasse: E
Heizung: Zentralheizung
Befeuerungsart: Gas
Energieausweistyp: Verbrauchsausweis - gültig vom 07.05.2018 bis 06.05.2028
Energieeffizienz-Klasse: E
Baujahr laut Energieausweis: 2000
Das könnte Ihnen auch gefallen

























































