Werdau:
Vermietete 2-RWE mit Balkon, Stpl. und Tageslichtbad! Unmittelbare Nähe zur Talsperre!
Objekt-Nr.: LHCr203-18

Balkonanlage, Blick ins Grüne

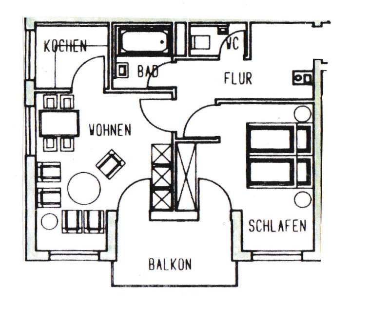
Grundriss W18

Außenansicht

Ausblick Balkonanlage

Stellplätze

Außenanlage

Außenanlage

Straße, ruhig gelegen

Koberbachtalsperre

Piratengolf, Biergarten

Piratengolf, Bootsverleih

Autokino












Preis:
30.000 €
Wohnfläche ca.:
50,82 m²
Zimmeranzahl:
2
Die Mehrfamilienhäuser Crimmitschauer Str. 201-207 in Langenhessen wurden lt. Energieausweis 1986 massiv erbaut und 1997 umfangreich saniert.
Die Immobilie befindet sich ruhig gelegen am Rande eines Feldes. Die gepflegte Außenanlage lädt zum Entspannen und Verweilen ein.
Stellplätze zu den Wohnungen befinden sich unmittelbar vor den Häusern.
Etage: 3
Etagenanzahl: 4
Provisionspflichtig: ja
Provision: 2.975,- € inkl. 19 % MwSt.
Bad: Fenster
Anzahl Schlafzimmer: 1
Anzahl Badezimmer: 1
Balkon: 1
Keller: ja
vermietet: ja
Anzahl der Parkflächen: 1 x Außenstellplatz
Letzte Modernisierung/ Sanierung: 1997
Baujahr: 1986
Hausgeld: 225,26 €
Mieteinnahmen p.a.: 3.000 €
Energieverb. Warmwasser enthalten: ja
Energieklasse: B
Heizung: Zentralheizung
Befeuerungsart: Gas
Energieausweistyp: Verbrauchsausweis - gültig vom 25.08.2018 bis 24.08.2028
Energieeffizienz-Klasse: B
Baujahr laut Energieausweis: 1997
Die Provision beträgt pauschal 2.975,- € inkl. 19 % MwSt. Sie ist verdient mit Abschluss des notariellen Kaufvertrages und spätestens mit dem Kaufpreis zur Zahlung fällig. Der Makler hat mit dem Verkäufer einen provisionspflichtigen Vertrag in gleicher Höhe geschlossen.
Das könnte Ihnen auch gefallen










































































