Zwickau:
Repräsentatives Wohnen oder Arbeiten auf 200 m² in Fabrikantenvilla – Sanierung nach Wunsch!
Objekt-Nr.: EB25-01

Außenansicht

Garten

Hauseingang

Außenansicht

Treppenhaus

Treppenhaus

Treppenhaus

Eingangsbreich Wohnung

Flur

Flur

Stuckelemente

möglicher Küchen- und Essbereich

möglicher Küchen- und Essbereich

möglicher Essbereich - offen geplant

geplantes Hauptbad

möglicher Wasch- und Trockenraum

Gäste-WC

1. mögliches Kinderzimmer

1. mögliches Kinderzimmer

Durchgangszimmer zwischen 1. und 2. Kinderzimmer

Durchgangszimmer

2. mögliches Kinderzimmer

mögiches Wohnzimmer mit Kamin

mögiches Wohnzimmer mit Kamin

mögliches Schlafzimmer

mögliches Schlafzimmer

Heizung

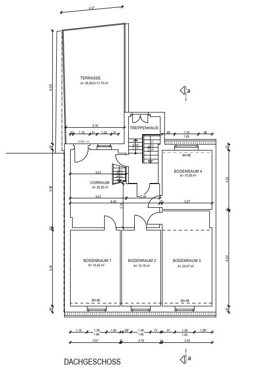
Kellerräume

Clara-Wieck-Gymnasium im Planitzer Schloß

Clara-Wieck-Gymnasium im Planitzer Schloß

Clara-Wieck-Gymnasium im Planitzer Schloß

Teehaus im Schloßpark

Lukaskirche

































mtl. Kaltmiete:
1.600 €
Wohnfläche ca.:
200 m²
Zimmeranzahl:
5
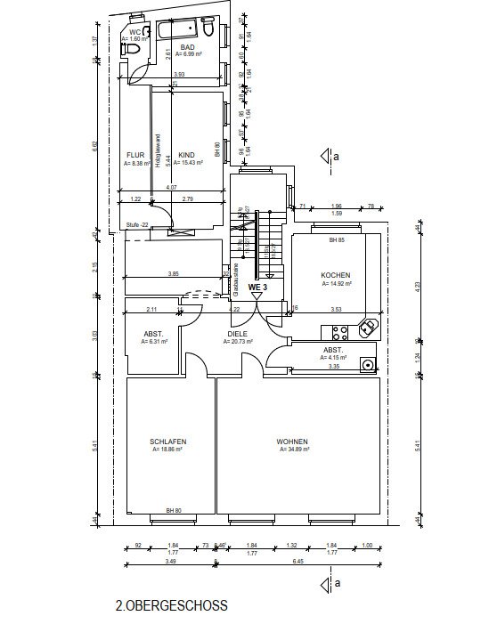
In einem stilvollen, denkmalgeschützten Fabrikantenvilla-Ensemble präsentiert sich diese großzügige Erdgeschoss-Einheit mit außergewöhnlichem Charme und vielseitiger Nutzungsmöglichkeit. Die Immobilie eignet sich ideal als gehobene 5-Raum-Wohnung oder als repräsentative Gewerbefläche – beispielsweise für Kanzleien, Praxen oder kreative Ateliers.
Das Gebäude wurde um 1900 erbaut und zuletzt bereits teilweise saniert. Im Zuge der Modernisierungen wurde unter anderem eine neue Heizungsanlage installiert.
Ein besonderes Highlight ist der gepflegte Garten, der zur gemeinschaftlichen Nutzung einlädt. Zusätzlich kann ein exklusiver Gartenanteil individuell gestaltet und ganz nach den eigenen Vorstellungen genutzt werden – ideal zum Entspannen, für Kundengespräche im Freien oder den privaten Rückzug.
Die Haltung von Haustieren ist nach vorheriger Absprache mit dem Vermieter grundsätzlich möglich.
Auch PKW-Stellplätze stehen auf dem Grundstück zur Verfügung.
Wohnungstyp: Erdgeschoss
Etagenanzahl: 2
Warmmiete inkl. NK: 2.220 €
Nebenkosten: 620 €
Kaution / Genossenschaftsanteile: 3.200 €
Heizkosten: sind in den Nebenkosten enthalten
Provisionspflichtig: nein
Küche: Einbauküche, offen
Bad: Dusche, Wanne, Fenster
Anzahl Schlafzimmer: 4
Anzahl Badezimmer: 1
Gäste-WC: ja
Garten/-mitbenutzung: ja
Kamin: ja
Keller: ja
Anzahl der Parkflächen: 2 x Außenstellplatz
Haustiere: erlaubt
Qualität der Ausstattung: gehoben
Baujahr: 1900
Bezugsfrei ab: nach Absprache
Bodenbelag: Fliesen, PVC
Zustand: Erstbezug nach Sanierung
Heizung: Fußboden, Zentralheizung
Energieausweistyp: Dieses Gebäude unterliegt nicht den Anforderungen der GEG
Das könnte Ihnen auch gefallen
































































