Plauen:
Schöne Penthousewohnung mit 3 großen Terrassen + TG-Stpl. direkt am Plauener Stadtpark!
Objekt-Nr.: PLSt18a

Außenansicht

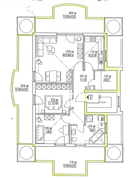
Grundriss

Tiefgarage

Außenansicht

Außenansicht

parkähnliche Außenanlage

Zufahrt Tiefgarage

Tiefgarage

TG-Stellplatz

Treppenhaus

Ausblick Dachterrasse

Ausblick Dachterrasse

Terrasse 1

Terrasse 2

Terrasse 2

Terrasse 3

Terrasse 3

Stadtpark

Stadtpark

Klostertürme

Martplatz Plauen





















Preis:
135.000 €
Wohnfläche ca.:
93,65 m²
Zimmeranzahl:
3
Das teil-unterkellerte Neubau-Objekt wurde lt. Energieausweis 1997 erbaut.
Es befindet sich in einem gepflegten Zustand.
Über eine befestigte Zufahrt gelangt man zur Tiefgarage.
Die Wohnung ist bis zum 1.1.26 vermietet und steht ab da auch für Eigennutzer zur Verfügung. Der aktuelle Mietvertrag läuft seit 2012. Die Kaltmiete beträgt 500,00 EUR, die Stellplatzmiete 27,00 EUR, die Nebenkostenvorauszahlung 393,00 EUR und die Gesamtmiete 920,00 EUR.
Der Erwerber wird Mitglied einer Wohneigentümergemeinschaft WEG mit einem Miteigentumsanteil von 948/10.000.
Vom Hausgeld sind bei Vermietung erfahrungsgemäß ca. 2/3 als Betriebskosten umlegbar.
Der Energieausweis ist dem Exposé als pdf-Dokument beigefügt.
Wohnungstyp: Dachgeschoss
Etage: 3
Etagenanzahl: 3
Provisionspflichtig: ja
Provision: 3,57 %, mind. 2.975 €, inkl. 19 % MwSt.
Bad: Dusche, Wanne, Fenster
Anzahl Schlafzimmer: 2
Anzahl Badezimmer: 1
Terrasse: 3
Keller: ja
vermietet: ja
Anzahl der Parkflächen: 1 x Tiefgarage
Letzte Modernisierung/ Sanierung: 1997
Baujahr: 1997
Mieteinnahmen p.a.: 6.000 €
Bezugsfrei ab: 1.1.26
Bodenbelag: Fliesen, Laminat
Zustand: gepflegt
Energieverb. Warmwasser enthalten: ja
Energieklasse: D
Heizung: Zentralheizung
Befeuerungsart: Gas
Energieausweistyp: Verbrauchsausweis - gültig vom 28.07.2017 bis 27.07.2027
Energieeffizienz-Klasse: D
Baujahr laut Energieausweis: 1997
Die Provision beträgt 3,57 % des Kaufpreises, mindestens jedoch 2.975 EUR, jeweils inkl. 19 % MwSt. Sie ist verdient mit Abschluss des notariellen Kaufvertrages und spätestens mit dem Kaufpreis zur Zahlung fällig. Der Makler hat mit dem Verkäufer einen provisionspflichtigen Vertrag in gleicher Höhe geschlossen.
Das könnte Ihnen auch gefallen
Vermietete 2-Raumwohnung in Zwickau!





































