Zwickau:
Gut geschnittene 2-Raumwohnung mit Balkon, in Marienthal nähe Krankenhaus!
Objekt-Nr.: KK38-01

Hausansicht

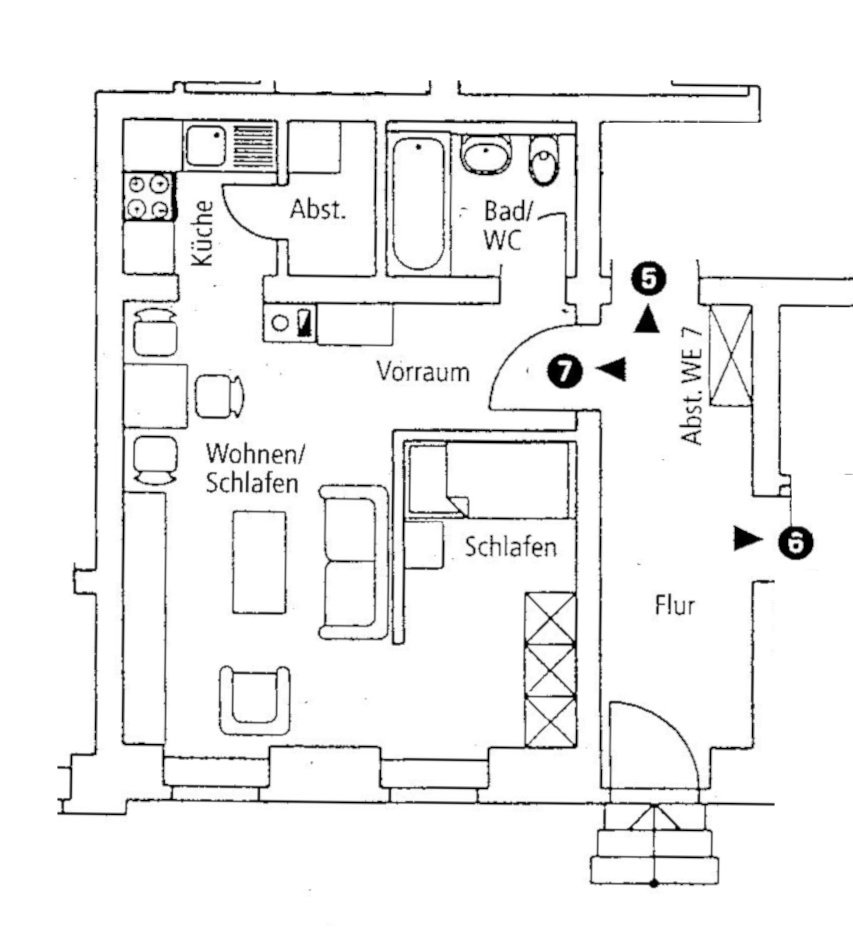
Grundriss

Hausansicht

Hausansicht

Treppenhaus

Flur

Flur

Schlafzimmer

Schlafzimmer

Wohnzimmer

Wohnzimmer

Balkon

Küche mit Fenster

Tageslichtbad

Waschmaschinenraum















mtl. Kaltmiete:
290 €
Wohnfläche ca.:
44,50 m²
Zimmeranzahl:
2
Die Immobilie wurde um 1922 massiv erbaut. 1999/2000 erfolgte eine aufwändige Kernsanierung unter denkmalpflegerischen Gesichtspunkten. Das Objekt zeichnet sich u.a. durch die parkähnlich angelegte Außenanlage mit Stellplätzen aus und befindet sich in einem gepflegten Zustand.
Wohnungstyp: Erdgeschoss
Etagenanzahl: 4
Warmmiete inkl. NK: 428 €
Nebenkosten: 138 €
Kaution / Genossenschaftsanteile: 870 €
Heizkosten: sind in den Nebenkosten enthalten
Provisionspflichtig: nein
Anzahl Schlafzimmer: 1
Anzahl Badezimmer: 1
Balkon: 1
Keller: ja
Letzte Modernisierung/ Sanierung: 1999
Qualität der Ausstattung: normal
Baujahr: 1922
Bodenbelag: Fliesen, Laminat
Zustand: gepflegt
Energieverb. Warmwasser enthalten: ja
Heizung: Zentralheizung
Befeuerungsart: Gas
Energieausweistyp: Verbrauchsausweis - gültig vom 20.06.2018 bis 19.06.2028
Energieeffizienz-Klasse: D
Baujahr laut Energieausweis: 1999
Das könnte Ihnen auch gefallen





























































