Zwickau:
Frisch renovierte 2-Zimmer-Whg. mit Balkon, nähe Marienthal
Objekt-Nr.: Mö7-2

Hausansicht

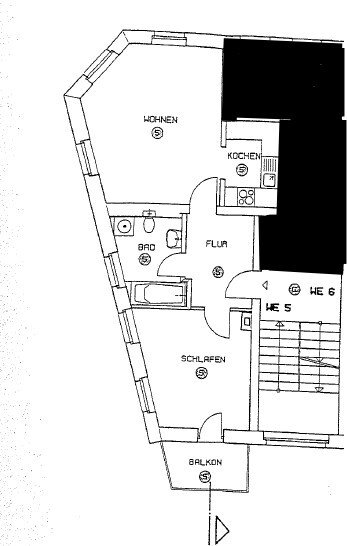
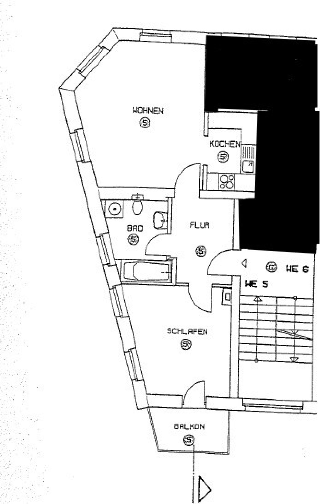
Grundriss

Wohnzimmer

Wohnzimmer

Wohnzimmer

Küche

Küche

Flur

Flur

Schlafzimmer

Schlafzimmer

Balkon

Badezimmer

Badezimmer

Badezimmer

Hausflur

Straßenansicht

















mtl. Kaltmiete:
310 €
Wohnfläche ca.:
52 m²
Zimmeranzahl:
2
Die Immobilie in der Mörikestraße 7 wurde 1901 erbaut und überzeugt durch ihre solide Bauweise und eine funktionale Grundrissgestaltung, die vielseitige Nutzungsmöglichkeiten bietet.
Die Wohneinheit ist hell und gut geschnitten, wodurch ein angenehmes Wohnambiente entsteht. Große Fensterflächen sorgen für eine freundliche Belichtung der Räume und unterstreichen den wohnlichen Charakter.
Die Ausstattung ist zweckmäßig und entspricht einem soliden Wohnstandard.
Das Gebäude ist unterkellert und bietet den Mietern zusätzlichen Stauraum. Außenanlagen sind gepflegt und stehen den Bewohnern zur gemeinschaftlichen Nutzung zur Verfügung.
Wohnungstyp: Etagenwohnung
Etage: 2
Etagenanzahl: 4
Warmmiete inkl. NK: 475 €
Nebenkosten: 165 €
Kaution / Genossenschaftsanteile: 760.00 €
Heizkosten: sind in den Nebenkosten enthalten
Provisionspflichtig: nein
Küche: offen
Bad: Wanne, Fenster
Anzahl Schlafzimmer: 1
Anzahl Badezimmer: 1
Balkon: 1
Einliegerwohnung: ja
Keller: ja
Letzte Modernisierung/ Sanierung: 2025
Qualität der Ausstattung: gehoben
Baujahr: 1901
Bezugsfrei ab: sofort
Bodenbelag: Laminat
Zustand: vollständig renoviert
Energieklasse: D
Heizung: Fernwärme
Befeuerungsart: Gas
Energietyp: Passivhaus
Energieausweistyp: Bedarfsausweis - gültig vom 21.04.2018 bis 21.04.2028
Energieeffizienz-Klasse: D
Baujahr laut Energieausweis: 1901
Das könnte Ihnen auch gefallen



















































