Zwickau:
Zentrumsnah: Denkmalgesch. MFH, Gewerbe + 4 WE mit Balkonen in Zwickau! 1 WE leer ab 01.06.2026
Objekt-Nr.: LPZ40Anlage

Außenansicht

Details am Haus

Rückansicht

Hauseingang

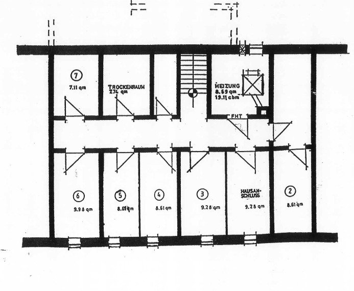
Grundriss KG

Grundriss EG

Grundriss 1. OG

Grundriss 2. OG

Grundriss DG

Grundriss Dachspitz

Zugang Hinterhof

Hinterhof

Hinterhof

Treppenhaus

Zugang Keller

Keller

Neumarkt Zwickau

Zwickauer Theater

Neue Welt, neuer Eingang

Skulpturenpark an der Neuen Welt

Schwanenteich, im Hintergrund die Domspitze





















Preis:
398.000 €
Baujahr:
1885
Das lt. Denkmalliste im Jahr 1885 erbaute, voll-unterkellerte Mehrfamilienhaus mit Gewerbeanteil steht als typisches Beispiel für die gründerzeitliche Wohnarchitektur Zwickaus unter Denkmalschutz und überzeugt durch seine solide Bauweise.
Das Gebäude wurde im Jahr 1995 durch den damaligen Eigentümer umfassend saniert. Die Sanierung erfolgte in Zusammenarbeit mit einem Generalunternehmer.
Neben der Erneuerung der technischen Anlagen umfasste die Sanierung auch die Modernisierung der Wohnungen und die Instandsetzung der Fassade. Im Zuge dieser Arbeiten wurde zudem das Dach vollständig neu gedeckt, der Dachstuhl erneuert und eine Zwischensparrendämmung eingebracht. Die Balkone wurden lt. Gutachten ca. 2018 erneuert.
Die straßenseitige Fassade sowie die straßenseitigen Holzfenster wurden vor etwa zehn Jahren überarbeitet und neu gestrichen. Der Verkäufer hat außerdem die Malerarbeiten an der rückwärtigen Fassade im Bereich des Treppenhauses sowie das Streichen der rückwärtigen Holzfenster beauftragt, die – sofern erforderlich – vor dem Verkauf noch ausgeführt werden.
Das zugehörige Grundstück ist lt. Grundbuch 390 m² groß.
Die Beheizung der Immobilie erfolgt über eine Zentralheizung, welche mit Gas betrieben wird.
Letzte Modernisierung/ Sanierung: 1995
Grundstück ca.: 390 m²
Gesamtfläche ca.: 507 m²
Wohnfläche ca.: 275 m²
Sonstige Fläche ca.: 232 m²
Mieteinnahmen p.a. (Soll): 40.255 €
Mieteinnahmen p.a. (Ist): 32.520 €
Etagenanzahl: 4
Balkon: 4
Küche: Einbauküche
Denkmalschutzobjekt: ja
Garten/-mitbenutzung: ja
Sauna: ja
Keller: voll unterkellert
vermietet: ja
Bodenbelag: Fliesen, Laminat, Teppichboden
Fußweg zu Öffentl. Verkehrsmitteln: 2 Minute(n)
Fahrzeit zum nächsten Hauptbahnhof: 8 Minute(n)
Fahrzeit zur nächsten BAB: 15 Minute(n)
Heizung: Zentralheizung
Befeuerungsart: Gas
Energieausweistyp: Dieses Gebäude unterliegt nicht den Anforderungen der GEG
Die Provision beträgt 3,57 % des Kaufpreises, mindestens jedoch 2.975 EUR, jeweils inkl. 19 % MwSt.
Sie ist verdient mit Abschluss des notariellen Kaufvertrages und spätestens mit dem Kaufpreis zur Zahlung fällig. Der Makler hat mit dem Verkäufer einen provisionspflichtigen Vertrag in gleicher Höhe geschlossen.
Das könnte Ihnen auch gefallen

















































































































