Kirchberg:
Leerstehende, helle 2-Raumwohnung mit EBK in Kirchberg! Denkmalschutz!
Objekt-Nr.: AUB40W2

Hausansicht

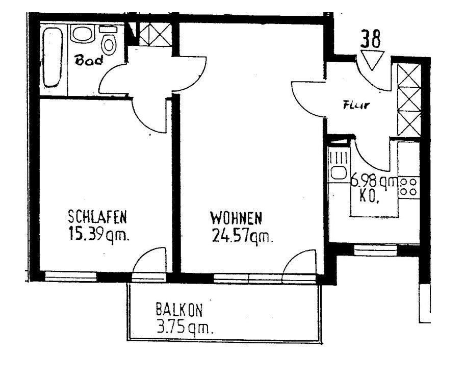
Grundriss Wohnung

Hofansicht

Hausansicht

Treppenhaus

Flur

Flur

Wohnzimmer

Wohnzimmer

Schlafzimmer

Schlafzimmer

Einbauküche

innenliegendes Bad mit Wanne

Badezimmer

Lageplan Keller Keller















Preis:
38.000 €
Wohnfläche ca.:
41,80 m²
Zimmeranzahl:
2
Das solitär stehende Mehrfamilienhaus wurde lt. Energieausweis 1890 errichtet. Es ist ein vollunterkellerter Ziegelmassivbau. Das Landesamt für Denkmalpflege würdigt am Gebäude das "zarte, vom Jugendstil beeinflusste Fassadendekor". Das Gebäude wurde 2001/2002 komplett entkernt und liebevoll saniert. Dabei wurden die denkmalschutzrechtlichen Vorgaben beachtet.
Im Haus befinden sich 11 Wohnungen mit insgesamt ca. 498,32 Wohnfläche.
Das zugehörige Grundstück ist ca. 549 m² groß und mit einem Metallzaun umgeben. Beide Hofeinfahrten und die 4 im Hof vorhandenen Stellplätze sind gepflastert. Zur Wohnung Nr. 2 gehört kein Stellplatz. Fahrzeuge können auch entlang der Auerbacher Straße abgestellt werden.
Wohnungstyp: Hochparterre
Etagenanzahl: 3
Provisionspflichtig: ja
Provision: 2.975,- € inkl. 19 % MwSt.
Küche: Einbauküche
Bad: Wanne
Anzahl Schlafzimmer: 1
Anzahl Badezimmer: 1
Denkmalschutzobjekt: ja
Keller: ja
Möbliert: nein
Letzte Modernisierung/ Sanierung: 2002
Qualität der Ausstattung: normal
Baujahr: 1890
Hausgeld: 222 €
Bezugsfrei ab: sofort
Bodenbelag: Fliesen, Laminat
Zustand: gepflegt
Energieverb. Warmwasser enthalten: ja
Energieklasse: D
Heizung: Zentralheizung
Befeuerungsart: Gas
Energieausweistyp: Verbrauchsausweis - gültig vom 23.10.2018 bis 22.10.2028
Energieeffizienz-Klasse: D
Baujahr laut Energieausweis: 2002
Die Provision beträgt pauschal 2.975,- € inkl. 19 % MwSt. Sie ist verdient mit Abschluss des notariellen Kaufvertrages und spätestens mit dem Kaufpreis zur Zahlung fällig. Der Makler hat mit dem Verkäufer einen provisionspflichtigen Vertrag in gleicher Höhe geschlossen.
Das könnte Ihnen auch gefallen













































