Plauen:
Vermietete 2-Raum Wohnung im 1. OG mit Fahrstuhl, Balkon und TG-Stpl. in zentrumsnaher Lage!
Objekt-Nr.: PLKö2W3

Straßenzug Körnerstraße/Burgstraße

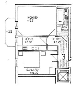
Grundriss W3

Ansicht

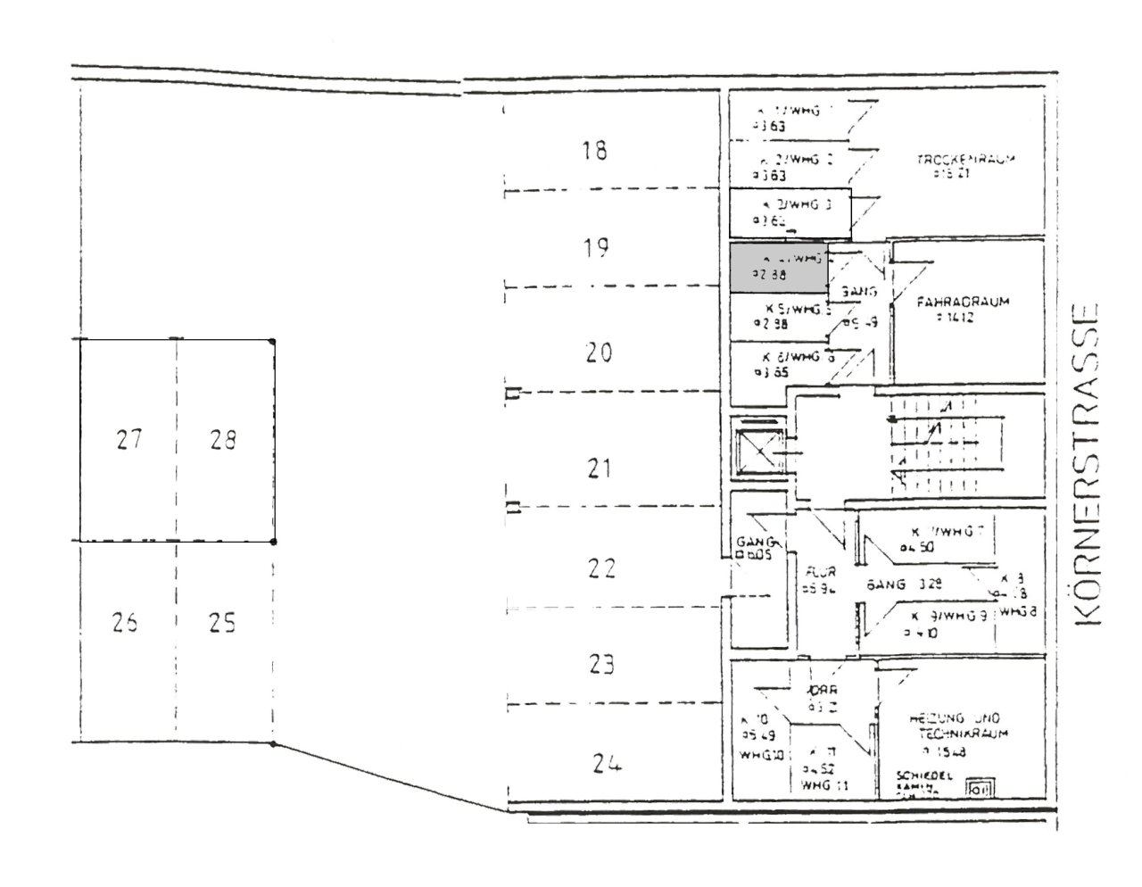
Lageplan Keller Nr. 3

Innenhof

Spielplatz Burgstraße

EDEKA in unmittelbarer Nähe

Brunnen am Marktplatz

Klostertürme

Parkeisenbahn

Parkeisenbahn











Preis:
41.000 €
Wohnfläche ca.:
57,04 m²
Zimmeranzahl:
2
Das Wohn- und Geschäftshaus in der Körnerstraße 2 wurde lt. Energieausweis 1994 erbaut und befindet sich unweit des Plauener Zentrums.
Das Objekt ist voll unterkellert und mit einem Fahrstuhl ausgestattet.
Unter dem Kellergeschoss befindet sich eine Tiefgarage.
Im Kellergeschoss erfolgte eine 2-fach Isolierbeschichtung.
Das Mauerwerk im Erdgeschoss ist gegen aufsteigende Feuchtigkeit mit Mauerwerksfolie abgedichtet.
Im Erdgeschoss befindet sich ein Restaurant, in den übrigen Etagen Wohnungen.
Der Dachstuhl des Hauses ist eine solide Konstruktion aus Nadelholz. Die Dacheindeckung besteht aus schwarzer Eifelplatte auf Volldachschalung.
Das Objekt hat eine separate Gaskesselanlage zur Beheizung aller Räume. 2019/2020 wurden der Heizkessel und die Heizungspumpe erneuert.
Das zum Haus gehörende Grundstück ist lt. GBA ca. 453 m² groß.
Etage: 1
Etagenanzahl: 5
Provisionspflichtig: ja
Provision: 2.975,- € inkl. 19 % MwSt.
Bad: Wanne
Anzahl Schlafzimmer: 1
Anzahl Badezimmer: 1
Balkon: 1
Keller: ja
Fahrstuhl: ja
vermietet: ja
Anzahl der Parkflächen: 1 x Tiefgarage
Möbliert: nein
Letzte Modernisierung/ Sanierung: 2001
Baujahr: 1994
Hausgeld: 331 €
Mieteinnahmen p.a.: 3.768 €
Energieverb. Warmwasser enthalten: ja
Heizung: Zentralheizung
Befeuerungsart: Gas
Energieausweistyp: Verbrauchsausweis - gültig vom 14.01.2019 bis 13.01.2029
Energieeffizienz-Klasse: B
Baujahr laut Energieausweis: 1994
Die Provision beträgt pauschal 2.975,- € inkl. 19% MwSt. Sie ist verdient mit Abschluss des notariellen Kaufvertrages und spätestens mit dem Kaufpreis zur Zahlung fällig. Der Makler hat mit dem Verkäufer einen provisionspflichtigen Vertrag in gleicher Höhe geschlossen.
Bei vorliegender Immobilie handelt es sich um eine sogenannte Gebrauchtimmobilie. Eine bestimmte Beschaffenheit, insbesondere Wohnfläche oder Renovierungszustand, wird üblicherweise nicht vereinbart. Die Angaben im Exposé dienen nur zu Informationszwecken. Sofern die Richtigkeit bestimmter Angaben besonders wichtig ist, so sind diese Angaben im Zweifel selbst zu überprüfen oder überprüfen zu lassen.
Das könnte Ihnen auch gefallen














































