Plauen:
Vermietetes Restaurant mit Gastgarten + 3 Apartments, inkl. 4 TG-Stellplätze
Objekt-Nr.: PLKö2Gastst

Restaurant Terrasse

Restaurant Gastraum

Hausansicht

Restaurant Tresen

Restaurant Gastraum

Restaurant Gastraum

Restaurant Treppe zum Kellerbereich

Gastgarten

Rückansicht

Restaurant Eingang

Tiefgarage

Körnerstraße

EDEKA in unmittelbarer Nähe

Spielplatz Burgstraße

Brunnen am Marktplatz

Klostertürme

Parkeisenbahn

Parkeisenbahn

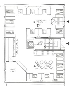
Grundriss W17 Athos EG

Grundriss W17 Athos Keller

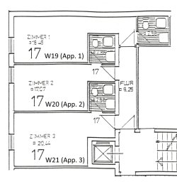
Grundriss Keller, Appartments 1, 2, 3





















Preis:
210.000 €
Gesamtfläche ca.:
342,38 m²
Gastraumfläche ca.:
177,92 m²
Das Wohn- und Geschäftshaus in der Körnerstraße 2 wurde lt. Energieausweis 1994 erbaut und befindet sich unweit des Plauener Zentrums mit sehr guter Nahverkehrsanbindung.
Das Objekt ist voll unterkellert und mit einem Fahrstuhl ausgestattet.
Unter dem Kellergeschoss befindet sich eine Tiefgarage.
Es erfolgte eine 2-fach Isolierbeschichtung im Keller.
Das Mauerwerk im Erdgeschoss ist gegen aufsteigende Feuchtigkeit mit Mauerwerksfolie abgedichtet.
Der Dachstuhl des Hauses ist eine solide Konstruktion aus Nadelholz.
Die Dacheindeckung besteht aus schwarzer Eifelplatte auf Volldachschalung.
Das Objekt hat eine separate Gaskesselanlage zur Beheizung aller Räume. 2019/2020 wurden der Heizkessel und die Heizungspumpe erneuert.
Das zum Haus gehörende Grundstück ist lt. GBA ca. 453 m² groß.
Der Gastraum und die Küche des zum Verkauf stehenden Restaurants befinden sich im Erdgeschoss. Auf einer Terrasse im Innenhof (Gastgarten) können weitere Sitzplätze angeboten werden. Mit dem Restaurant werden 3 Apartments im Untergeschoss (Zimmer mit Dusche und WC) sowie 4 Stellplätze in der Tiefgarage im Paket verkauft. Diese sind im Kaufpreis enthalten.
Letzte Modernisierung/ Sanierung: 2001
Baujahr-Gebäude: 1994
Grundstück ca.: 453 m²
Provisionspflichtig: ja
Provision: 3,57 %, mind. 2.975 €, inkl. 19 % MwSt.
Zimmeranzahl: 7
Etagenanzahl: 5
Anzahl der Parkflächen: 4 x Tiefgarage
Terrasse: 1
Gastterrasse: ja
Keller: ja
Fahrstuhl: ja
vermietet: ja
Möbliert: nein
Energieverb. Warmwasser enthalten: ja
Heizung: Zentralheizung
Befeuerungsart: Gas
Energieausweistyp: Verbrauchsausweis
Baujahr laut Energieausweis: 1994
Die Provision beträgt 3,57 % des Kaufpreises inkl. 19 % MwSt. Sie ist verdient mit Abschluss des notariellen Kaufvertrages und spätestens mit dem Kaufpreis zur Zahlung fällig. Der Makler hat mit dem Verkäufer einen provisionspflichtigen Vertrag in gleicher Höhe geschlossen.
Bei vorliegender Immobilie handelt es sich um eine sogenannte Gebrauchtimmobilie. Eine bestimmte Beschaffenheit, insbesondere Wohnfläche oder Renovierungszustand, wird üblicherweise nicht vereinbart. Die Angaben im Exposé dienen nur zu Informationszwecken. Sofern die Richtigkeit bestimmter Angaben besonders wichtig ist, so sind diese Angaben im Zweifel selbst zu überprüfen oder überprüfen zu lassen.
Das könnte Ihnen auch gefallen





















































































