Zwickau:
Großzügige 4-Raum-Whg. mit Balkon, Dachterrasse, Whirlpool-Wanne und Tageslichtbad! Vermietet!
Objekt-Nr.: Dö24-08

Außenansicht

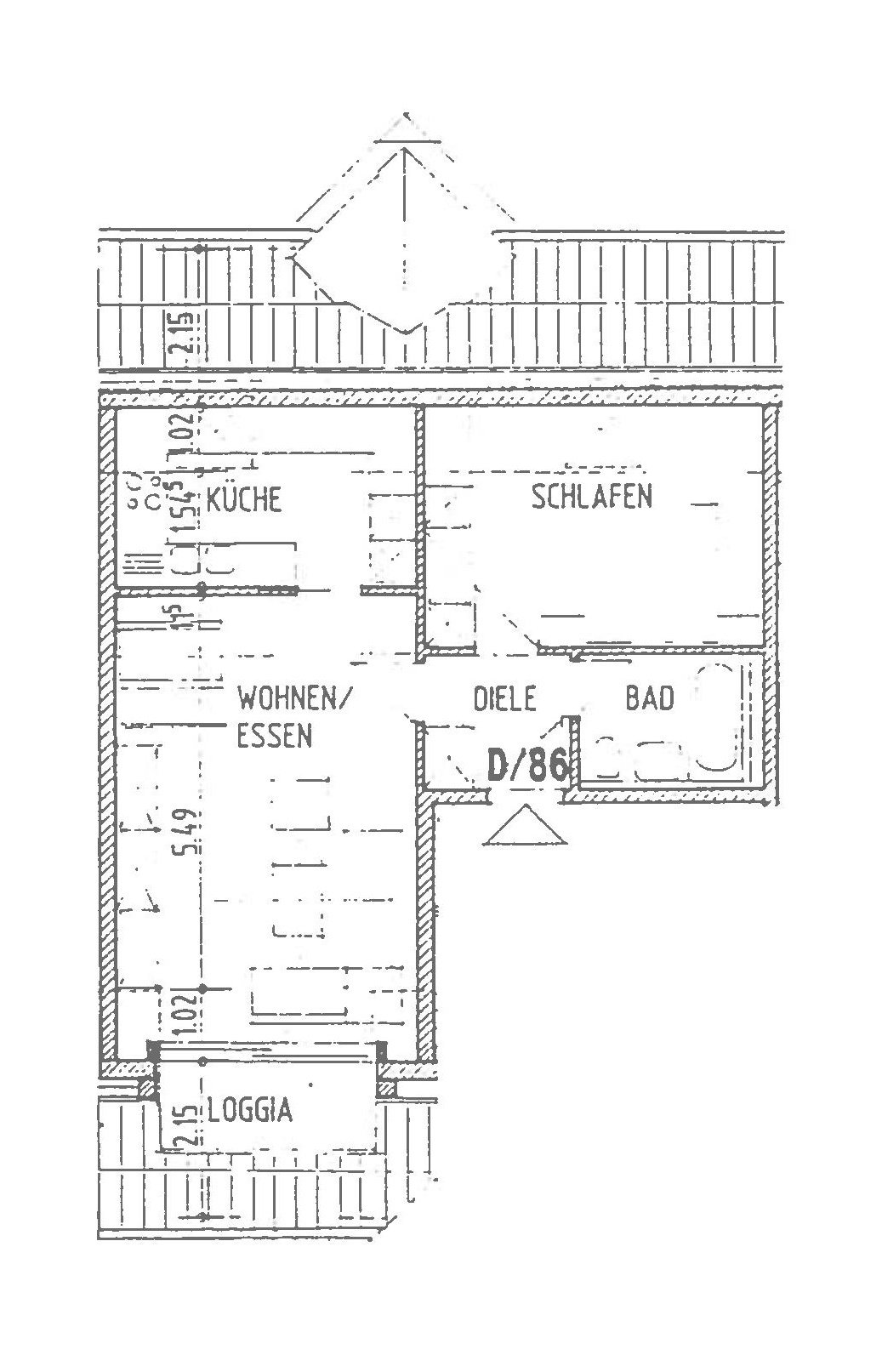
Grundriss 2. OG

Grundriss DG

Treppenhaus, Metallgeländer

Außenansicht

Straße zum Parken

Stadtpark Marienthal

Zwickauer Theater

Kornmarkt Zwickau









Preis:
104.000 €
Wohnfläche ca.:
99,99 m²
Zimmeranzahl:
4
Das dreigeschossige Mehrfamilien-Wohnhaus Döhnerstraße 24 wurde 1901 als vollunterkellerter Ziegelmassivbau errichtet. Das Eckhaus mit schöner Klinkerfassade steht unter Denkmalschutz und hinterlässt einen gepflegten Eindruck.
Im Jahr 2000 wurde das Gebäude umfassend modernisiert.
Die Sanierungsbeschreibung schließt alle üblichen Gebäudeteile und Gewerke ein:
- Versorgungsanschlüsse,
- Rohbau, Keller, Treppenhaus, Fassade, Dach,
- Fußböden, Innenwände und Decken,
- Fenster und Türen,
- Bodenbeläge, Fliesen und Malerarbeiten,
- Elektro-, Sanitär, Heizungsinstallation,
- neue Balkonanlage (Stahlkonstruktion),
- Außenanlagen.
Nach Abschluss der Sanierung verfügt das Haus über neun moderne Wohnungen und einer Gewerbeeinheit.
Das Haus wird über eine Gas-Zentralheizung mit zentraler Warmwasserbereitung beheizt. Für die Bewohner steht im Keller ein geräumiger Trockenraum zur Verfügung.
Das zum Objekt gehörende Grundstück umfasst eine Fläche von 280 m². Hinter dem Haus ist eine kleine Grünanlage mit Wäscheplatz und Stellfläche für Abfallbehälter vorhanden.
Das Abstellen von PKW ist in den umliegenden Straßen möglich.
Wohnungstyp: Maisonette
Etage: 2
Etagenanzahl: 3
Provisionspflichtig: ja
Provision: 3,57 % des Kaufpreises inkl. 19 % MwSt.
Bad: Dusche, Wanne, Fenster
Anzahl Schlafzimmer: 3
Anzahl Badezimmer: 1
Balkon: 1
Terrasse: 1
Denkmalschutzobjekt: ja
Gäste-WC: ja
Keller: ja
vermietet: ja
Möbliert: nein
Letzte Modernisierung/ Sanierung: 2000
Baujahr: 1901
Hausgeld: 595 €
Mieteinnahmen p.a.: 6.960 €
Zustand: gepflegt
Energieverb. Warmwasser enthalten: ja
Energieklasse: D
Heizung: Zentralheizung
Befeuerungsart: Gas
Energieausweistyp: Verbrauchsausweis - gültig vom 10.08.2018 bis 09.08.2028
Energieeffizienz-Klasse: D
Baujahr laut Energieausweis: 2000
Die Provision beträgt 3,57 % des Kaufpreises inkl. 19 % MwSt. Sie ist verdient mit Abschluss des notariellen Kaufvertrages und spätestens mit dem Kaufpreis zur Zahlung fällig. Der Makler hat mit dem Verkäufer einen provisionspflichtigen Vertrag in gleicher Höhe geschlossen.
Das könnte Ihnen auch gefallen










































































