Reinholdshain:
Frisch renoviert! 2-Raumwhg. mit Balkon, TG-Stpl. (duplex, saniert), Neubau 1997!
Objekt-Nr.: OB10c-09VM

Außenansicht

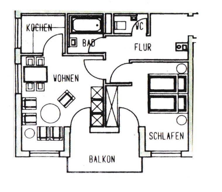
Grundriss

Außenansicht

gepflegtes Treppenhaus

Flur

Schlafzimmer, Zugang Balkon

Wohnzimmer, Zugang Balkon

Zugang Küche

Balkon

Ausblick Balkon

Bad innenliegend

Keller

Mieterkeller

Keller, Trockenraum

Zufahrt Tiefgarage

Zugang zur Tiefgarage

Tiefgarage mit Doppelparkern

sanierte Doppelparker, Stellplatz oben links

Zentrum Glauchau, Markt

Schloss Glauchau

Gründelpark





















mtl. Kaltmiete:
320 €
Wohnfläche ca.:
53 m²
Zimmeranzahl:
2
Das Objekt wurde lt. Energieausweis 1997 massiv erbaut.
Im Jahr 2024 erfolgte eine Sanierung aller Doppelparker-Systeme in der Tiefgarage. Die Wohnung wurde 2025 frisch saniert und ist bezugsfertig.
Wohnungstyp: Etagenwohnung
Etage: 1
Etagenanzahl: 2
Warmmiete inkl. NK: 485 €
Nebenkosten: 165 €
Kaution / Genossenschaftsanteile: 960 €
Heizkosten: sind in den Nebenkosten enthalten
Provisionspflichtig: nein
Bad: Wanne
Anzahl Schlafzimmer: 1
Anzahl Badezimmer: 1
Balkon: 1
Keller: ja
Anzahl der Parkflächen: 1 x Tiefgarage, pro Stück 30 €
Letzte Modernisierung/ Sanierung: 2025
Baujahr: 1997
Bezugsfrei ab: sofort
Bodenbelag: Fliesen, Laminat
Energieverb. Warmwasser enthalten: ja
Energieklasse: C
Heizung: Zentralheizung
Befeuerungsart: Flüssiggas
Energieausweistyp: Verbrauchsausweis - gültig vom 14.07.2017 bis 13.07.2027
Energieeffizienz-Klasse: C
Baujahr laut Energieausweis: 1997
Das könnte Ihnen auch gefallen





























































