Glauchau:
1,5-Raumwhg. mit EBK und Stpl. in historischem Villenviertel
Objekt-Nr.: HH1-7

Ansicht mit Park und Gerichtsgebäude (rechts)

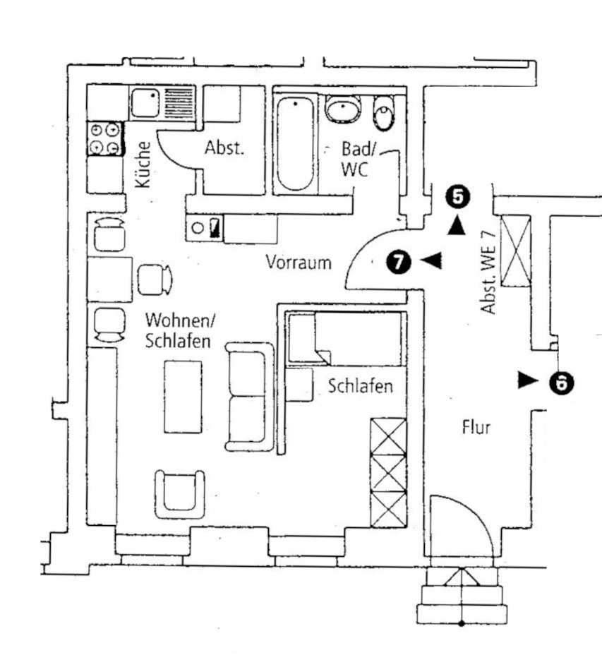
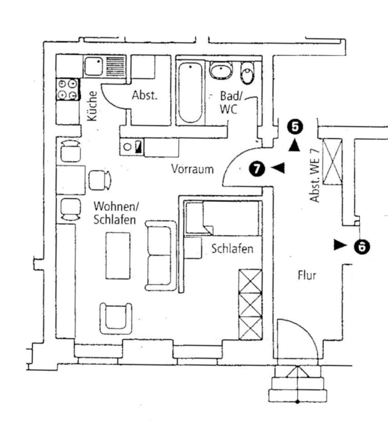
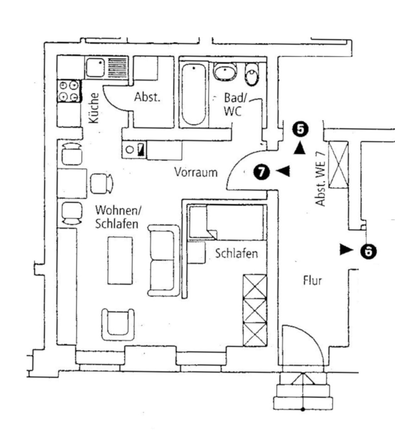
Grundriss W7

Vorderseite

Grundriss W7

Wohnzimmer

Wohnbereich

Wohnzimmer

Zugang Schlafbereich

Schlafbereich


Badezimmer

Einbauküche

Abstellraum mit Waschmaschinenanschluss

Rückseite

Gebäude Rückseite

Gebäude Rückseite

historischer Hauseingang

repräsentatives Treppenhaus

Marktplatz Glauchau

Marktplatz mit Rathausturm

Marktbrunnen

Figurengruppe spielende Kinder

Zufahrt/Zugang zum Schloss

Schloss Forderglauchau Eingang

Schloss Forderglauchau

Schloss Forderglauchau Park

Schloss Forderglauchau Park



























mtl. Kaltmiete:
250 €
Wohnfläche ca.:
36,09 m²
Zimmeranzahl:
1,5
Die beiden Mehrfamilienhäuser Heinrichshof 1 und 3 wurden um 1860 rechts und links des Fürstlich und Gräflich Schönburgischen Bezirksgerichtes zu Glauchau errichtet. Der gesamte Komplex steht unter Denkmalschutz. Die Gebäude sind teilunterkellert.
Im Jahr 1998 erfolgte eine komplexe Sanierung und Modernisierung der Wohngebäude unter weitgehender Erhaltung bzw. Wiederherstellung des Originalzustandes.
Die Kelleraußenwände bestehen aus 47cm - 62 cm dickem massiven Bruchstein bzw. Vollziegelmauerwerk. Die weiteren Außenmauern sind im EG 62 cm dick und im Obergeschoss 42 cm.
Der Keller besitzt eine massive Ziegelkappendecke. Treppenhaus und Eingangshalle vermitteln ein gehobenes Ambiente. Eingangsbereich und Eingangstreppe sind mit Naturstein ausgelegt. In die obere Etage führen doppelt gewendelte Sandsteintreppen. Im Treppenhaus findet man dekorative Schablonenmalereien.…
Der Dachstuhl ist als hölzerner Zangendachstuhl ausgeführt. Die Eindeckung des Daches erfolgte mit hochwertigen Bieberschwanzziegeln.
Die Fenster wurden nach historischem Vorbild als zweiflügelige Holzfenster mit Oberlicht und Jura-Stein-Fensterbänken neu hergestellt. Die historische Eingangstür erfuhr eine restauratorische Aufarbeitung. Auch die Wohnungseingangstüren sind aus massivem Holz.
Das Haus erhielt eine moderne Gas-Heizung in Brennwerttechnik. Die Warmwasserversorgung erfolgt dezentral über Elektrospeicher, was besonders zur Sommerzeit Heizungskosten einsparen soll.
Auf der Gartenseite wurde geräumige Balkone in Holzkonstruktion angebaut.
Gepflegte Außenanlagen runden den Eindruck des Wohnkomplexes ab.
Wohnungstyp: Erdgeschoss
Etage: 1
Etagenanzahl: 3
Warmmiete inkl. NK: 365 €
Nebenkosten: 115 €
Kaution / Genossenschaftsanteile: 750.00 €
Heizkosten: sind in den Nebenkosten enthalten
Provisionspflichtig: nein
Küche: Einbauküche
Bad: Wanne
Anzahl Schlafzimmer: 1
Anzahl Badezimmer: 1
Keller: ja
Anzahl der Parkflächen: 1 x Außenstellplatz, pro Stück 20 €
Letzte Modernisierung/ Sanierung: 1998
Baujahr: 1860
Bezugsfrei ab: frühestens Juni
Bodenbelag: Laminat
Energieverb. Warmwasser enthalten: ja
Energieklasse: C
Heizung: Zentralheizung
Befeuerungsart: Gas
Energieausweistyp: Verbrauchsausweis - gültig vom 17.05.2018 bis 16.05.2028
Energieeffizienz-Klasse: D
Baujahr laut Energieausweis: 1998
Das könnte Ihnen auch gefallen



















































