Heinsdorfergrund:
Schlüsselfertiger Bungalow mitten im Grünen! 125 m² Wfl., 701 m² Grdst., Terrasse, Bauträgerbindung
Objekt-Nr.: WB4 Bung125

Ansicht

Grundriss

Ortslage Hauptmannsgrün

Flurkarte mit Parzelle 603/22 (Haus-Nr. 4)




Preis:
399.500 €
Wohnfläche ca.:
125 m²
Grundstück ca.:
701 m²
Zimmeranzahl:
4
Das Angebot Bungalow 125 auf dem Baugrundstück Waldblick 4 in der Gemeinde Heinsdorfergrund OT Hauptmannsgrün beinhaltet die Errichtung eines schlüsselfertigen Bungalows nach vorgegebenem Projekt auf einem vorhandenen Grundstück mit einem vorgegebenen Bauträger. Sie brauchen sich also um (fast) nichts zu kümmern.
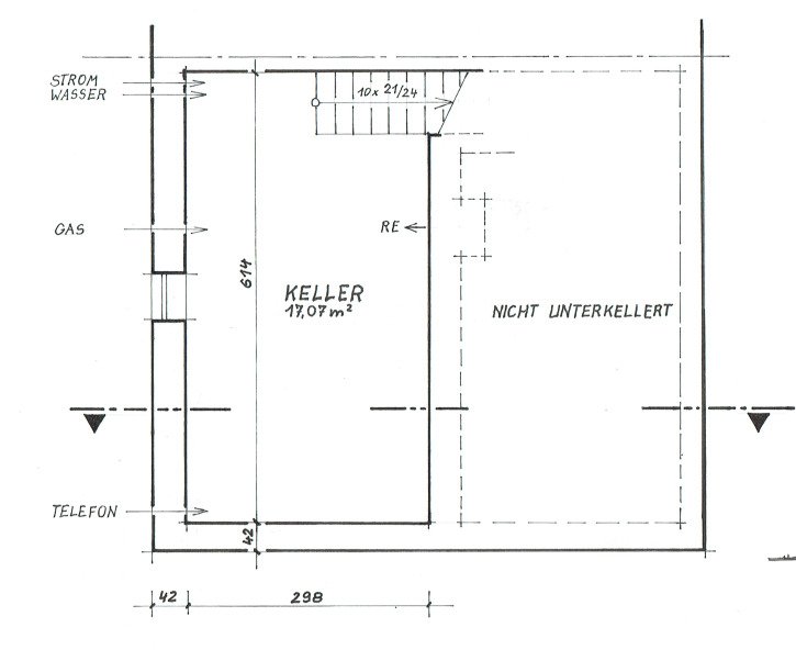
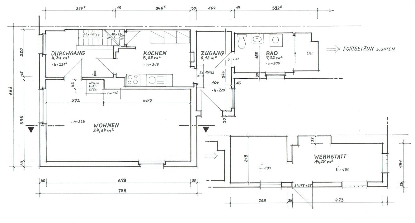
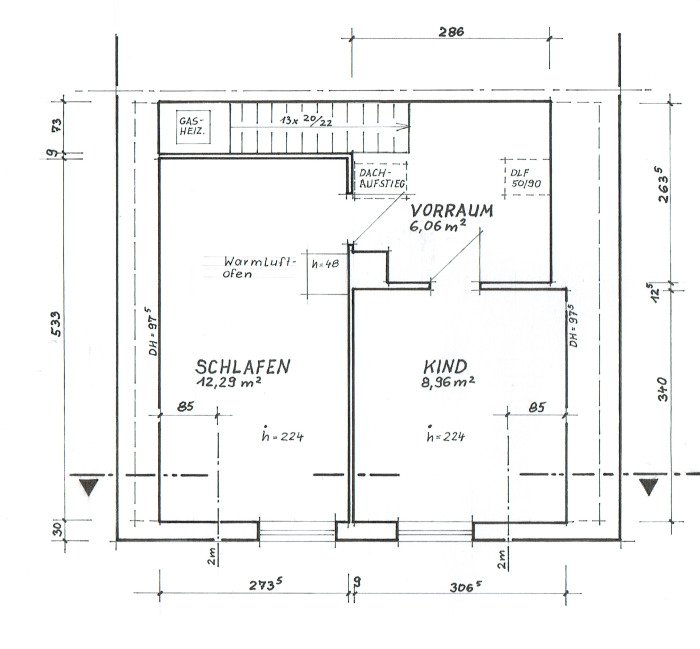
Der Bungalow baut auf einer Bodenplatte auf und besitzt ein Walmdach. Eine Unterkellerung ist optional möglich.
Die Heizung der Immobilie entspricht modernen energetischen Forderungen. Ein Luft/Wasser-Wärmepumpen-System erwärmt alle Räume und ist als Fußbodenheizung konzipiert.
Das Haus ist an das kommunale Abwassernetz angeschlossen.
Zum Bungalow gehört ein begrüntes Grundstück von lt. Projekt 701 m² Fläche mit einer Terrasse hinter und zwei Außenstellplätzen neben dem Haus. Um das Haus herum wird ein Kies-Streifen zum Schutz des Sockelbereichs angelegt.
Die Standard-Pflasterarbeiten einschließlich Unterbau und Borden umfassen eine Fläche von ca. 60 m².
Das Haus wird schlüsselfertig übergeben INKL. Maler- und Bodenbelagsarbeiten, Hausanschlüssen für TW, AW, Strom und Telekom.
Über das Basisprojekt hinaus können Sie weitere Ausbauvarianten und verschiedene Qualitäten hinzubuchen, wie z.B. Keller, Garage, energetische Optimierung nach KfW40-Standard, Sicherheitspaket,
Haustyp: Bungalow
Etagenanzahl: 1
Provisionspflichtig: ja
Provision: 3,57 % des Kaufpreises inkl. MwSt.
Bad: Dusche, Wanne, Fenster
Anzahl Schlafzimmer: 4
Anzahl Badezimmer: 2
Gäste-WC: ja
Keller: nein
Anzahl der Parkflächen: 2 x Außenstellplatz
Baujahr: 2025
Bauphase: Haus in Planung (projektiert)
Die Provision beträgt 3,57 % des Kaufpreises inkl. 19 % MwSt.
Sie ist verdient mit Abschluss des notariellen Kaufvertrages und spätestens mit dem Kaufpreis zur Zahlung fällig. Der Makler hat mit dem Verkäufer einen provisionspflichtigen Vertrag in gleicher Höhe geschlossen.
Das könnte Ihnen auch gefallen







































































































