Treuen:
Modern geschnittene 1-Raum-Wohnung mit Loggia in Treuen! Vermietet, Aufzug!
Objekt-Nr.: AB30-05

Außenansicht

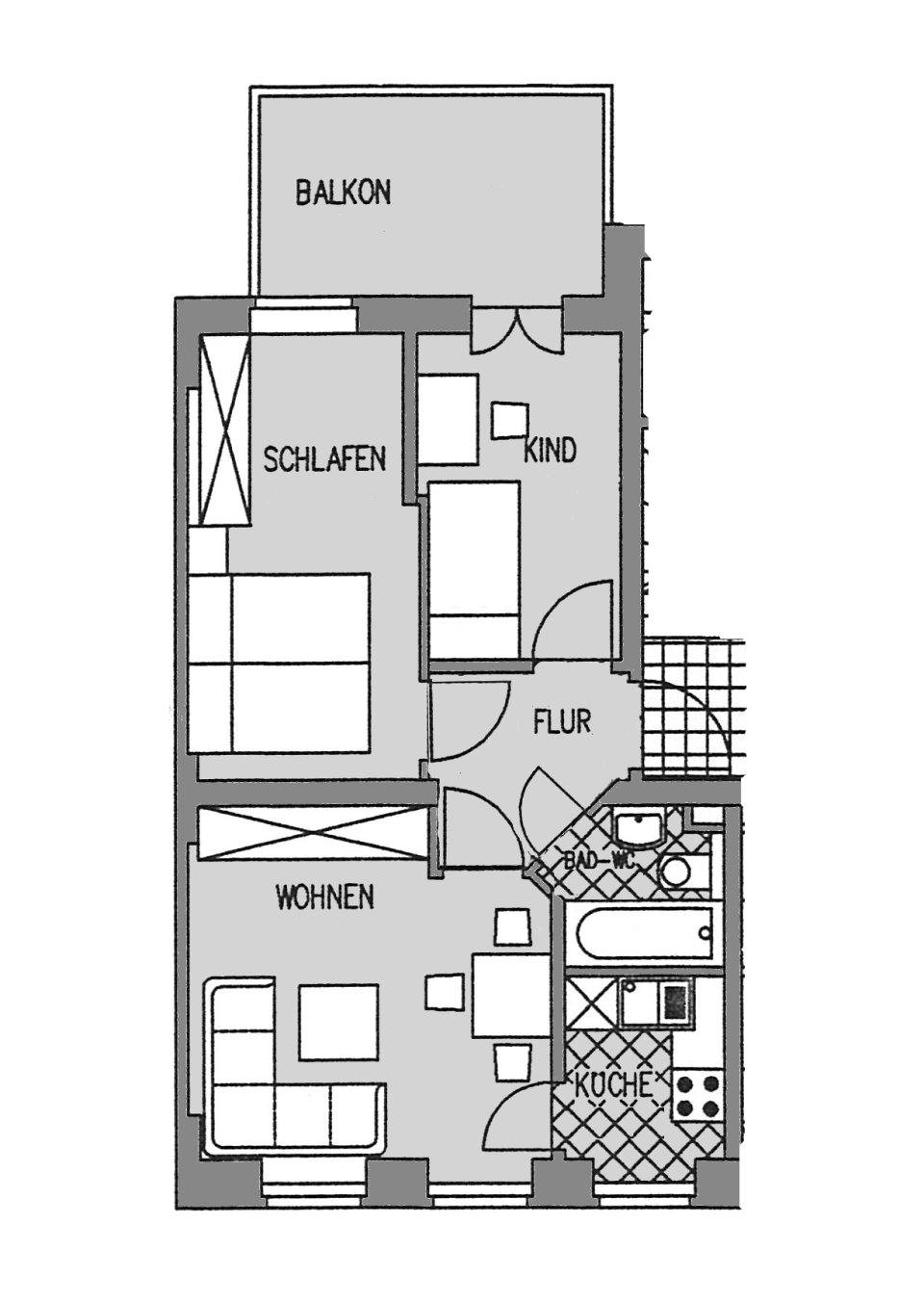
Grundriss

Straßenansicht

Treppenhaus

Zugang Keller

Kellerräume

Trockenraum

Restaurant & Hotel auf der Straße








Preis:
39.500 €
Wohnfläche ca.:
43,88 m²
Zimmeranzahl:
1
Das Mehrfamilienhaus wurde lt. Energieausweis 1996 erbaut.
Es befindet sich in einer ruhigen Siedlung mit Mehr- bzw. Einfamilienhäusern.
Etage: 2
Etagenanzahl: 3
Provisionspflichtig: ja
Provision: 2.975,- € inkl. 19 % MwSt.
Küche: offen
Bad: Dusche, Wanne
Anzahl Badezimmer: 1
Loggia: 1
Keller: ja
Fahrstuhl: ja
vermietet: ja
Letzte Modernisierung/ Sanierung: 1996
Baujahr: 1996
Hausgeld: 213,58 €
Zustand: gepflegt
Energieverb. Warmwasser enthalten: ja
Energieklasse: D
Heizung: Zentralheizung
Befeuerungsart: Gas
Energieausweistyp: Verbrauchsausweis - gültig vom 04.03.2022 bis 03.03.2032
Energieeffizienz-Klasse: D
Baujahr laut Energieausweis: 1996
Die Provision beträgt pauschal 2.975,- € inkl. 19 % MwSt. Sie ist verdient mit Abschluss des notariellen Kaufvertrages und spätestens mit dem Kaufpreis zur Zahlung fällig. Der Makler hat mit dem Verkäufer einen provisionspflichtigen Vertrag in gleicher Höhe geschlossen.
Das könnte Ihnen auch gefallen



































































