Zwickau:
Wohnungspaket - 2 Wohnungen, davon 1 WE vermietet, mit Garage in ruhiger Lage! Nähe VW Mosel!
Objekt-Nr.: ZwKo5

Außenansicht

Grundriss EG

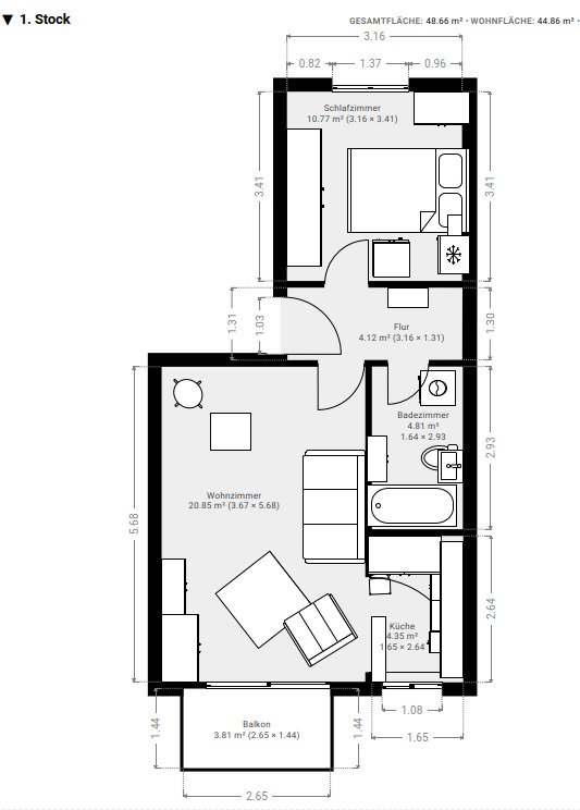
Grundriss DG

Außenansicht

Zufahrt Garage

Zugang Haus

Hauseingang

Treppenhaus EG

Treppenhaus DG

Wohnzimmer DG WE 3

Badezimmer DG

Badezimmer DG

Schlafzimmer DG

Schlafzimmer DG

Schlafzimmer DG

Küche DG

große Dachterrasse

Waschmaschinenstellplätze

Keller

große Garage

große Garage

Rückansicht

gepflegter Garten

Außenansicht

Zwickauer Theater

Schwanenteich Zwickau

Schloss Osterstein



























Preis:
98.000 €
Wohnfläche ca.:
149,61 m²
Zimmeranzahl:
4
Das Objekt wurde ca. 1905 erbaut und 2001 umfangreich saniert.
Es befindet sich in einer ruhigen Siedlung mit mehreren Ein- bzw. Mehrfamilienhäusern.
Zu den Wohnungen gehört eine große Garage.
Etagenanzahl: 2
Provisionspflichtig: ja
Provision: 3,57 % des Kaufpreises inkl. 19 % MwSt.
Küche: Einbauküche
Bad: Dusche, Wanne, Fenster
Anzahl Schlafzimmer: 2
Anzahl Badezimmer: 2
Terrasse: 1
Garten: ja
Keller: ja
Anzahl der Parkflächen: 1 x Garage
Letzte Modernisierung/ Sanierung: 1992
Baujahr: 1905
Mieteinnahmen p.a.: 3.600 €
Bodenbelag: Fliesen, Laminat
Zustand: gepflegt
Energieverb. Warmwasser enthalten: ja
Energieklasse: D
Heizung: Zentralheizung
Befeuerungsart: Gas
Energieausweistyp: Verbrauchsausweis - gültig vom 27.05.2024 bis 26.05.2034
Energieeffizienz-Klasse: D
Baujahr laut Energieausweis: 1992
Die Provision beträgt 3,57 % des Kaufpreises inkl. 19 % MwSt. Sie ist verdient mit Abschluss des notariellen Kaufvertrages und spätestens mit dem Kaufpreis zur Zahlung fällig. Der Makler hat mit dem Verkäufer einen provisionspflichtigen Vertrag in gleicher Höhe geschlossen.
Das könnte Ihnen auch gefallen
















































