Zwickau:
DHH in begehrter Lage, modernes + energieeffizientes Heizkonzept, großes Grundstück mit Sauna + Pool
Objekt-Nr.: ZwSp

Außenansicht, Pool

Straßenansicht

Gartensauna

Schnitt

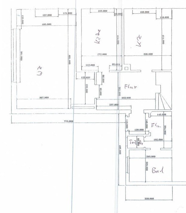
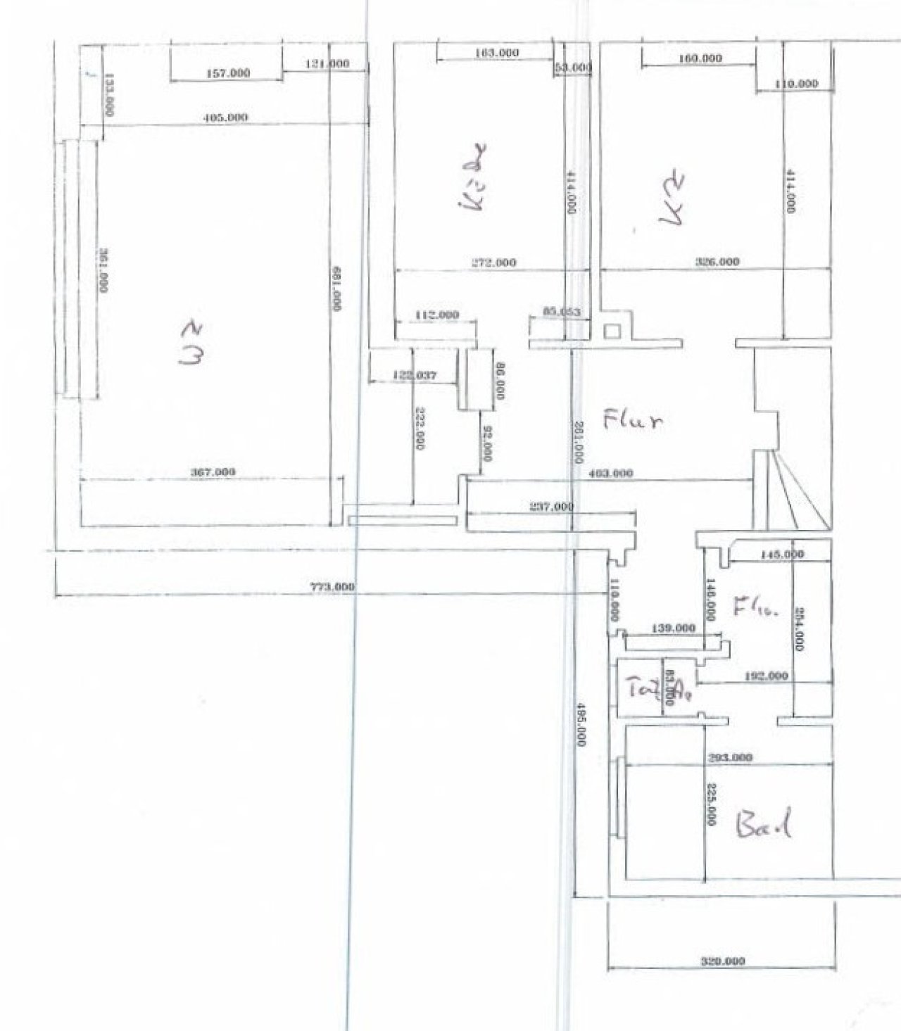
EG

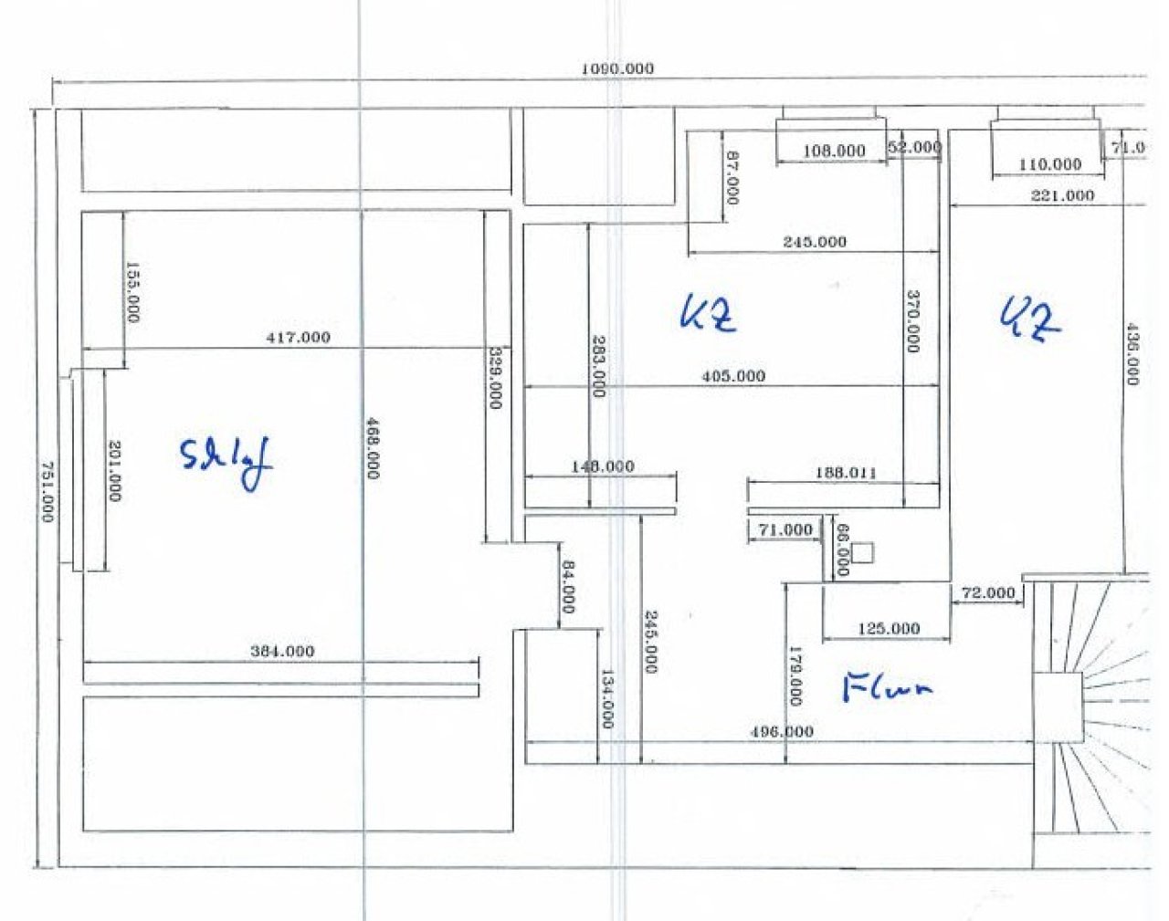
1. OG

Grundriss Keller

Vorderansicht

Seitliche Ansicht

Hintere Ansicht

Grundriss Garage Schuppen Carport

überdachter, beheizbarer Pool

Blick in das Grundstück













Preis:
280.000 €
Wohnfläche ca.:
134 m²
Grundstück ca.:
1.000 m²
Zimmeranzahl:
5
Die teilunterkellerte Doppelhaushälfte wurde 1935 in Massivbauweise errichtet und über die Jahrzehnte kontinuierlich modernisiert. 1975 erfolgte der Anbau von Wohn- und Schlafstube an der Giebelseite. In den 1990er Jahren wurden grundlegende Sanierungen durchgeführt, wie z.B.: Sockeldämmung, Drainage, Elektroinstallation, Heizungsanlage, Badumbau sowie der Einbau von Wärmeschutzfenstern mit Außenjalousien.
In den Folgejahren erfolgten weitere wertsteigernde Maßnahmen. Dazu zählen:
- 2005 Gartensauna in separatem Gartenhaus
- 2008 neues Dach mit Blechziegeln
- 2010–2011 Photovoltaikanlagen auf Haus und Garage
- 2018 Neubau eines massiven, gedämmten Pools mit Überdachung und Solarbeheizung sowie Neubau von Carport und überdachter Terrasse
- 2019–2023 Solaranlagen auf Terrasse und Carport, Wärmepumpe, Speicher PV (16,6 kWh), neue Gastherme mit Speicherinstallation…
Das Objekt verfügt über ein Hybrid-Heizsystem aus Luft-Wärmepumpe (10 kW) und Gastherme (16 kW), ergänzt durch PV-Anlagen und Speichertechnik. Überschüsse werden intelligent in Warmwasserspeicher und Heizungsunterstützung eingespeist. Die Energiekosten sind dadurch extrem niedrig: Im Jahr 2025 lagen die saldierten Kosten für Gas und Strom bei nur 86,60 €. Dies zeigt sich auch im Energieausweis des Hauses. Am Carport befindet sich eine Wallbox, die das kostengünstige Laden eines Elektrofahrzeuges mit selbst erzeugtem Strom ermöglicht. In Carport, Garagen und gepflasterter Einfahrt können insgesamt bis zu 7 PKW geparkt werden.
Der unbebaute Teil des großzügigen Grundstücks besteht im Wesentlichen aus einer Grünfläche. Im hinteren Bereich schließt sich ein Flurstück mit einer Größe von rund 300 m² an, welches der Eigentümer von der Stadt Zwickau pachtet. Vor dem Haus befindet sich ein kleiner Vorgarten mit Ziergewächsen.
Die Abwasserentsorgung erfolgt in die öffentliche Kanalisation.
Haustyp: Doppelhaushälfte
Etagenanzahl: 1
Provisionspflichtig: ja
Provision: 3,57 % des Kaufpreises inkl. 19 % MwSt.
Nutzfläche ca.: 200 m²
Küche: Einbauküche
Anzahl Schlafzimmer: 3
Anzahl Badezimmer: 1
Terrasse: 2
Gäste-WC: ja
Garten: ja
Pool: ja
Sauna: ja
Keller: teil unterkellert
Anzahl der Parkflächen: 2 x Garage
Letzte Modernisierung/ Sanierung: 2021
Baujahr: 1935
Energieklasse: A
Heizung: Zentralheizung
Befeuerungsart: Umweltwärme
Energieausweistyp: Bedarfsausweis - gültig vom 22.11.2025 bis 21.11.2035
Energieeffizienz-Klasse: A
Baujahr laut Energieausweis: 2021
Die Provision beträgt 3,57 % des Kaufpreises. Sie ist verdient mit Abschluss des notariellen Kaufvertrages und spätestens mit dem Kaufpreis zur Zahlung fällig. Der Makler hat mit dem Verkäufer einen provisionspflichtigen Vertrag in gleicher Höhe geschlossen.
Das könnte Ihnen auch gefallen







































































































































