Werdau:
Sanierungsbed. Wohnhaus mit denkmalgeschütztem Wirtschaftsgebäude + Garage
Objekt-Nr.: WeD

Ansicht Wohnhaus

Wohnhaus mit Stallung

Ansicht von oben

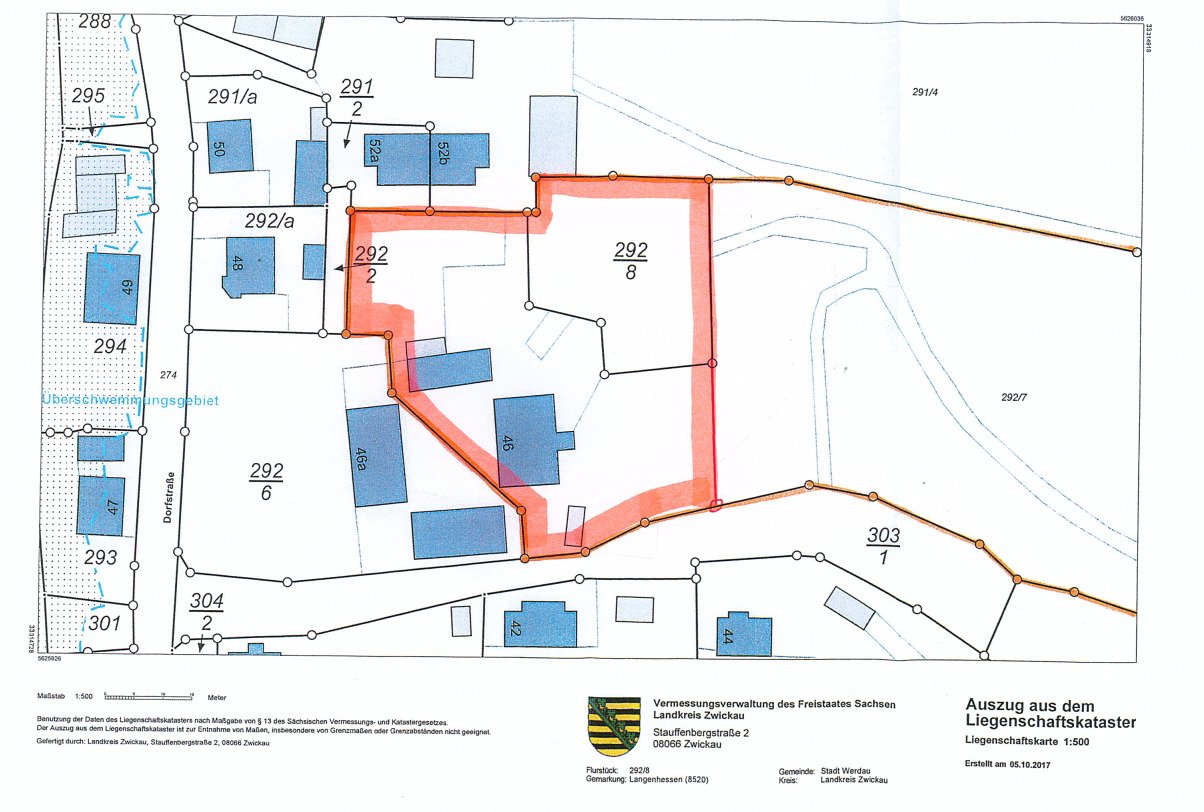
Grundstücksgrenze

Wirtschaftsgebäude

Garage

Grundstück

Wirtschaftsgebäude

Wirtschaftsgebäude

Wirtschaftsgebäude

Garage Wirtschaftsgebäude

Wirtschaftsgebäude

Heuboden Wirtschaftsgebäude

Kellerraum Wirtschaftsgebäude

WC Wirtschaftsgebäude

Wohnhaus

Außenanlage Wohnhaus

Ausblick Terrasse Wohnhaus

Flur Wohnhaus

Flur Wohnhaus

Flur Wohnhaus

Kellertreppe

Kellerraum

WC mit Fenster

Tageslichtbad Wanne, Dusche

Dusche

Zugang Terrasse

Terrasse

Küche

Küche

Abstellraum

Esszimmer

Wohnzimmer

Wohnzimmer Kachelofen

Heizung / WM

Treppe zum OG

OG

Zimmer

Zimmer

Zimmer

Zimmer

Zimmer

Zimmer

Zugang Dachboden

Dachboden

Dachboden

Spitzboden















































Preis:
145.000 €
Wohnfläche ca.:
229,14 m²
Grundstück ca.:
3.000 m²
Zimmeranzahl:
9
Zum Verkauf stehen ein sanierungsbedürftiges Haupt- und ein sanierungsbedürftiges, unter Denkmalschutz stehendes Nebengebäude eines ehemaligen 4-Seiten-Bauernhofes. Außerdem gehört eine separat stehende Garage zum Verkaufsumfang.
Der 4-Seitenhof ist komplett existent und wird derzeit vorwiegend für Wohnzwecke genutzt. Vor einigen Jahren wurde das Grundstück diagonal über den Innenhof geteilt.
Das Wohnhaus wurde lt. Energieausweis ca. 1870 errichtet. Das Gebäude ist mit massivem Mauerwerk erbaut und teilunterkellert.
Im Laufe der Jahre erfolgten mehrere Um- und Anbauten. So wurde im EG eine Terrasse angebaut, eine Gasheizung (1995) installiert sowie Sanitär- und Elektroinstallationen ergänzt. Alle Dachsparren und Teile des Dachgebälks wurden erneuert und das Dach neu gedeckt.…
Das zeitgleich errichtete Wirtschaftsgebäude diente ursprünglich als reines Gebäude für die Tierhaltung und für Lagerzwecke von Futtermitteln. Dementsprechend wurde die Bauweise gewählt. Das Gebäude hat einen kleinen massiven Teilkeller mit Gewölbedecke. Im Erdgeschoss sind noch heute Stalleinrichtungen für Hasen, Hühner und Schafe vorhanden. Das Dachgeschoss hat einen Spitzboden in Holzkonstruktion. Es besteht im Wesentlichen nur aus 2 größeren Räumen, die zur Einlagerung von Heu und Stroh genutzt wurden. Der darüber befindliche Spitzboden ist leer und ungenutzt. Dieses Gebäude hat keine Heizung. Umbauten gab es hier nur im EG, wo im mittleren Teil eine Garage, in der SO-Ecke ein WC und an der Nordseite ein Hühnerstall ergänzt wurden. Bis auf die bereits erfolgten nötigsten Reparaturen (z.B. Dachdeckung erneuert) befindet sich das Gebäude im ursprünglichen Zustand.
Die Garage wurde vermutlich erst in den 60er Jahren errichtet. Es handelt sich um einen gut erhaltenen, massiven Mauerwerksbau.
Haustyp: Bauernhaus
Etagenanzahl: 2
Provisionspflichtig: ja
Provision: 3,57 % des Kaufpreises inkl. 19 % MwSt.
Nutzfläche ca.: 321,70 m²
Küche: Einbauküche
Bad: Dusche, Wanne, Fenster
Anzahl Schlafzimmer: 8
Anzahl Badezimmer: 1
Terrasse: 1
Gäste-WC: ja
Dachboden: ja
Keller: teil unterkellert
Denkmalschutzobjekt: ja
Als Ferienhaus geeignet: ja
Anzahl der Parkflächen: 1 x Garage
Letzte Modernisierung/ Sanierung: 1995
Baujahr: 1870
Zustand: sanierungsbedürftig
Energieklasse: H
Heizung: Zentralheizung
Befeuerungsart: Gas
Energieausweistyp: Bedarfsausweis - gültig vom 01.07.2024 bis 30.06.2034
Energieeffizienz-Klasse: H
Baujahr laut Energieausweis: 1995
Die Provision beträgt 3,57 % des Kaufpreises inkl. 19 % MwSt.
Sie ist verdient mit Abschluss des notariellen Kaufvertrages und spätestens mit dem Kaufpreis zur Zahlung fällig. Der Makler hat mit dem Verkäufer einen provisionspflichtigen Vertrag in gleicher Höhe geschlossen.
Bei vorliegender Immobilie handelt es sich um eine sogenannte Gebrauchtimmobilie. Eine bestimmte Beschaffenheit, insbesondere Wohnfläche oder Renovierungszustand werden üblicherweise nicht vereinbart. Die Angaben im Exposé dienen nur zu Informationszwecken. Sofern die Richtigkeit bestimmter Angaben besonders wichtig ist, so sind diese Angaben im Zweifel selbst zu überprüfen oder überprüfen zu lassen.
Das könnte Ihnen auch gefallen























































































































