Zwickau:
Voll vermietetes Mehrfamilienhaus mit 4 WE´s, gepflegtem Garten und Stellplätzen in Zwickau!
Objekt-Nr.: ZwCK

Außenansicht

gepflegter Garten

Außenansicht

Außenansicht

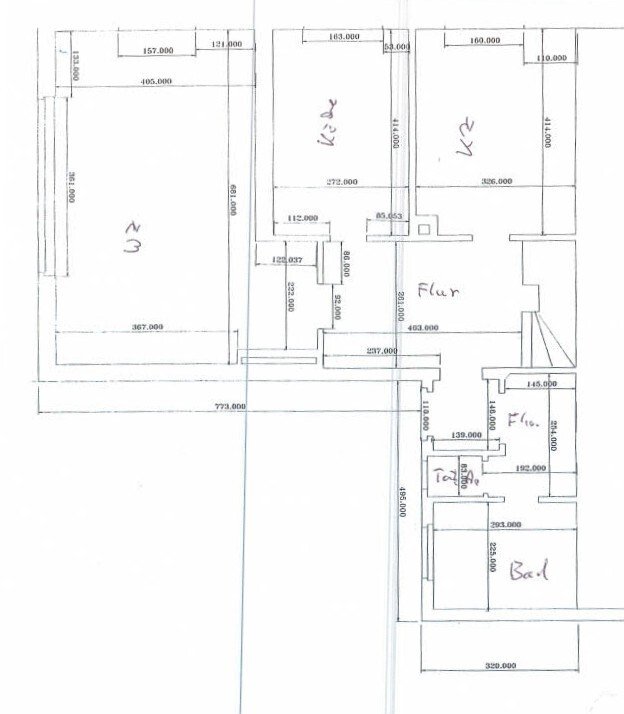
Erdgeschoss

Obergeschoss

Dachgeschoss

Dachspitz

Konzert- und Ballhaus Neue Welt

Skulpturenpark an der Neuen Welt

Zwickauer Mulde

Schwanenteich Zwickau

August-Horch-Museum Zwickau

Hauptmarkt Zwickau

Zwickauer Theater















Preis:
320.000 €
Wohnfläche ca.:
251,40 m²
Grundstück ca.:
537 m²
Zimmeranzahl:
9
Das voll vermietete Mehrfamilienhaus mit insgesamt 251,40 m² Wohnfläche und 537 m² Grundstücksfläche wurde lt. Energieausweis 1910 massiv erbaut und 2020 umfangreich saniert.
So wurden unter anderem neue Kunststofffenster mit Isolierverglasung, neue Fußböden, neue Bäder inkl. Installationen usw. eingebaut. Auch das Dach wurde neu gedeckt und der Wärmeerzeuger erneuert.
Im Haus befinden sich insgesamt 4 Wohnungen, welche derzeit alle vermietet sind. Die Jahresnettomiete beträgt nach Einberechnung der EG-Wohnung 17.616 €.
Für die Beheizung der Immobilie wurden Nachtspeicheröfen eingebaut, da kein Gasanschluss vorhanden ist. Diese werden mit separat gezähltem Heizstrom betrieben. In den beiden großen Wohnungen im Erdgeschoss und 1. Obergeschoss wird mit Infrarotheizung geheizt. Das Erdgeschoss verfügt zusätzlich über eine Fußbodenheizung in Flur und Bad. In den oberen Etagen wird teilweise noch die alte Heizmöglichkeit mit Wärmenachtspeicher genutzt.
Das Objekt ist nicht unterkellert.
Auf dem Zwischenpodest im Treppenhaus vom Erdgeschoss zum Obergeschoss sowie vom Obergeschoss zum Dachgeschoss befindet sich jeweils ein kleiner Waschmaschinenraum.
Insgesamt befinden sich auf dem Grundstück 4 Stellplätze.
Haustyp: Mehrfamilienhaus
Etagenanzahl: 2
Provisionspflichtig: ja
Provision: 3,57 % des Kaufpreises inkl. 19 % MwSt.
Bad: Dusche, Wanne, Fenster
Anzahl Schlafzimmer: 5
Anzahl Badezimmer: 4
Garten: ja
Dachboden: ja
Keller: nein
vermietet: ja
Anzahl der Parkflächen: 4 x Außenstellplatz
Letzte Modernisierung/ Sanierung: 2000
Baujahr: 1900
Mieteinnahmen p.a.: 17.616 €
Zustand: gepflegt
Energieklasse: B
Heizung: Fußboden, Radiatoren
Befeuerungsart: Alternativ
Energieausweistyp: Verbrauchsausweis - gültig vom 14.08.2025 bis 13.08.2035
Energieeffizienz-Klasse: B
Baujahr laut Energieausweis: 2020
Die Provision beträgt 3,57 % des Kaufpreises inkl. 19 % MwSt. Sie ist verdient mit Abschluss des notariellen Kaufvertrages und spätestens mit dem Kaufpreis zur Zahlung fällig. Der Makler hat mit dem Verkäufer einen provisionspflichtigen Vertrag in gleicher Höhe geschlossen.
Das könnte Ihnen auch gefallen


























































































